開放性と収納力を兼ね備えたLDK
- 物件全体
- キッチン・ダイニング・リビング
株式会社アラカーサ
| 建物種別 | 戸建て |
|---|---|
| 改修規模 | 改装・設備交換 |
| 工事面積 | 約27m2 |
| 施工期間 | 約45日 |
| 地域 | 兵庫県 |
| 家族構成 | ご夫婦 |
| テーマ | 明るい部屋、広々 |
-
クラフトレーベルの硝子戸がLDKへのゲートとして設置。お部屋に入る前からワクワク感が広がります。
-
クラフトレーベルの黒いリビングドアが素敵なアクセント。お家に新たな魅力を加えていることが伺えます。
-
ベリティス取っ手レス収納扉が大きな収納スペースとして大活躍。この収納にはファックスや書類、インターネット配線、充電スペースなど多様な用途が収められています。
-
壁と一体化した収納扉は、階段下のスペースにも設置されています。ここには季節ごとの機器やゴルフバッグなどを、高さに合わせて収納しています。この使い勝手の良い収納方法により、空間を有効活用している印象が感じられます。
-
開放的な空間に変わりました。エアコンの位置も移動し、空調効率向上とともに、配線配管を隠蔽するために収納の隣に設置。こうした工夫によって、空間がすっきりと整えられました。
以前は収納が少なく、ご家族が物を色々なところに置いてしまっていたため、奥様がお片づけを頑張ってもなかなかすっきりしませんでした。それらの課題を改善するために、デザインやレイアウトだけでなく、小さな物の収納場所や家電家具の配置まで、リフォーム前に計画しました。これにより、必要なものと不要なものを選別し、新たな家具を購入する決断を下すまでの一連の流れが実現し、トータルコーディネートが可能となりました。

ハウスメーカー、リフォーム専門会社にも相談しましたが、見積もりの割には、何か釈然としないデザインの提案。そんな時、家内が友人からアラカーサを紹介してもらいました。こちらの思い描くコンセプトを伝え、後は提案くださった中から選ぶというスタイルで進めていきました。予算の都合上、可能な限り既存のものを使いながら、でもホテルライクのような高級感がありスッキリと洗練された空間にしてほしいと自分でも無茶なお願いだなと思いつつ、相談させてもらいました。荒川さんのスッキリ見せるコンセプトと、トータルコーディネート力、そしてところどころに見え隠れする荒川Magic、使い勝手や収納もきちんと考えてられており想像以上に快適に過ごせています。子ども達もスッキリした我が家を見て喜んでおります。ありがとうございました。

過分なお言葉に恐縮です。お喜び頂けたことが私たちの何よりのパワーとなります。本当に有難うございます
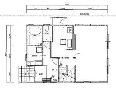
以前のキッチンは非常に閉鎖的で、リビングのコーナー全てに物があふれていました。ピアノや健康器具まで置かれており、格好良くするのは非常に難しかったようです。

クラフトレーベルの硝子戸がLDKへのゲートとして設置。お部屋に入る前からワクワク感が広がります。
バランスの良くない照明配置により、一層ごちゃごちゃとした印象が強調されていました。リフォームによってこの問題も解消されたのでしょうか?

クラフトレーベルの黒いリビングドアが素敵なアクセント。お家に新たな魅力を加えていることが伺えます。

ベリティス取っ手レス収納扉が大きな収納スペースとして大活躍。この収納にはファックスや書類、インターネット配線、充電スペースなど多様な用途が収められています。

壁と一体化した収納扉は、階段下のスペースにも設置されています。ここには季節ごとの機器やゴルフバッグなどを、高さに合わせて収納しています。この使い勝手の良い収納方法により、空間を有効活用している印象が感じられます。

開放的な空間に変わりました。エアコンの位置も移動し、空調効率向上とともに、配線配管を隠蔽するために収納の隣に設置。こうした工夫によって、空間がすっきりと整えられました。
各スペースはゆったりとしていたのですが収納が少なくて物が溢れていた

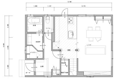
LDKに収納を設置。浴室サイズを1616に下げたことで洗面所とユーティリティを設けました





