閉塞感をなくし、スタイリッシュなエントランス空間に!
- 物件全体
- ダイニング・リビング
- キッチン
- 洗面
- 浴室
- 玄関・廊下
株式会社シンエイ・シンエイリフォーム
| 建物種別 | マンション |
|---|---|
| 改修規模 | 全面リフォーム |
| 築年数 | 築24年 |
| 工事面積 | 約6m2 |
| 施工期間 | 約32日 |
| 工事費 | 約30万円 |
| 地域 | 兵庫県 |
| 家族構成 | 夫婦+子ども1人 |
| テーマ | 団らんキッチン、明るい部屋、広々、その他 |
-
ホールに出っ張っている壁にあえてアクセントカラーを採用。ベースカラー部分のシンプルさが際立ち空間を広くみせてくれます。LDKと同色のアクセントカラーで統一感を持たせています。
-
コの字タイプの玄関収納はカウンター部分をホール側に計画することで開放的な空間に。飾り棚の役割だけでなく台や手すりとして実用的にも使いやすくなります。フロートタイプの浮遊感で、空間がさらに軽やかに。
玄関ホールの閉塞感を解消するため、ホールに出っ張っている壁にアクセントカラーを取り入れました。このアクセントカラーはベースカラーのシンプルな形状を浮かび上がらせ、空間を広く見せてくれます。また、LDKと同色のアクセントカラーで統一感を持たせ、スタイリッシュなエントランス空間が完成しました!さらに、人感センサー付きのダウンライトを採用し、上質なお出迎え空間に仕上げました。

・間取りや内装の相談にのってもらったことでありきたりにならなかった。
・全体的な統一感が取れていることがよかった。
・キッチン・洗面室・浴室・トイレは家族が毎日使うところ。広くなって気分がよい。
・洗面室とトイレのアール壁の提案が気に入っている。

家族皆が日常使う場所を広くしたいと考えておられたお施主様。キッチン・洗面室・浴室・トイレは家族が毎日使う場所ですので重点的に取り組みました。デメリットが生じる可能性もよく理解され、どこを犠牲にするかを慎重に考えられました。また、全体のデザインについてはリゾートホテルのような統一感を重視され、提案ごとにご家族で吟味していただきました。おかげさまで素敵な空間が完成しました。
閉塞感のある廊下

ホールに出っ張っている壁にあえてアクセントカラーを採用。ベースカラー部分のシンプルさが際立ち空間を広くみせてくれます。LDKと同色のアクセントカラーで統一感を持たせています。
既存のコの字タイプの玄関収納は、カウンター部分が玄関ドア側に設置されており、不便で閉塞感があった。

コの字タイプの玄関収納はカウンター部分をホール側に計画することで開放的な空間に。飾り棚の役割だけでなく台や手すりとして実用的にも使いやすくなります。フロートタイプの浮遊感で、空間がさらに軽やかに。
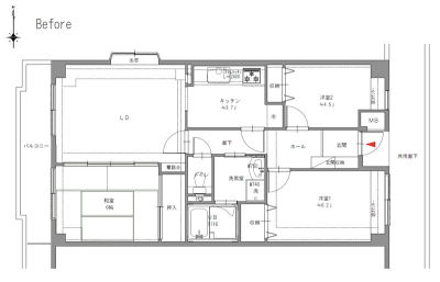
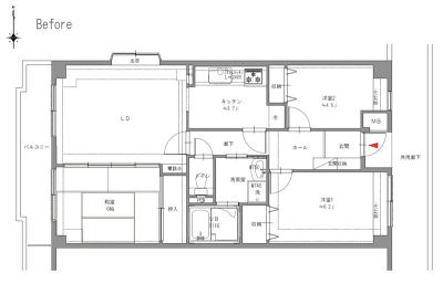
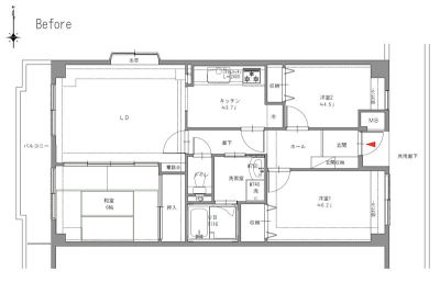
・部屋が分割されていて、LDKが狭い。
・浴室が狭い。

・和室の一部を利用してせまかった浴室を1116サイズ→1418サイズに。
・残りの和室をLDKに取り込むことにより、
3つの窓からの採光が入り明るい空間に。
・リビング収納やニッチ収納を作ることで、
家族のモノで雑然としがちなLDKもすっきり。
- 玄関収納 コンポリア
- LED照明 ダウンライト
- (配線器具)アドバンスシリーズ
- 造作部材 ベリティス





