リゾートホテルのように広く快適な水廻り。
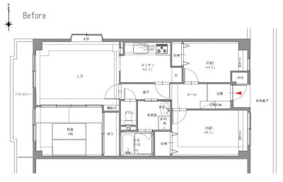
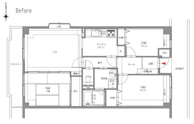
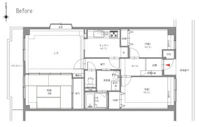
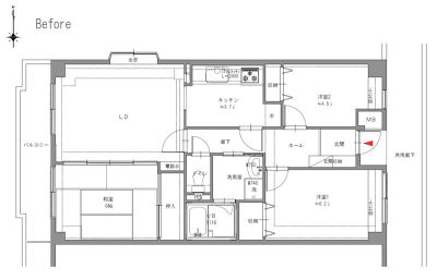
- 物件全体
- ダイニング・リビング
- キッチン
- 洗面
- 浴室
- 玄関・廊下
株式会社シンエイ・シンエイリフォーム
| 建物種別 | マンション |
|---|---|
| 改修規模 | 全面リフォーム |
| 築年数 | 築24年 |
| 工事面積 | 約8m2 |
| 施工期間 | 約32日 |
| 工事費 | 約135万円 |
| 地域 | 兵庫県 |
| 家族構成 | 夫婦+子ども1人 |
| テーマ | 団らんキッチン、明るい部屋、広々、その他 |
-
浴室の移動により広々洗面室が実現!家族が混みあう時間もストレスなく利用できます。
-
広くなった洗面室にはカウンタータイプの洗面化粧台を設置。お手持ちの椅子に座って、快適にメイクやスキンケアを楽しむことができます。まるでリゾートにいるかのような贅沢な空間です。
-
トイレとの間仕切り壁にアール壁を採用しました。またパイプスペース(PS)の壁の存在感を差し色使いで緩和しました。リゾートホテルのような水廻り空間が実現しました!
-
トイレの位置は変わらず、洗面室との間仕切り壁をアールにすることで、ワンランク上の空間になりました!
浴室が広がり、それに伴って洗面室のスペースも広くすることができました。そして洗面室横のトイレ間仕切りをアール壁にすることで、さらにゆったりと広い洗面室空間を確保することができ、お客様のご要望を叶えることが出来ました。

・間取りや内装の相談にのってもらったことでありきたりにならなかった。
・全体的な統一感が取れていることがよかった。
・キッチン・洗面室・浴室・トイレは家族が毎日使うところ。広くなって気分がよい。
・洗面室とトイレのアール壁の提案が気に入っている。

家族皆が日常使う場所を広くしたいと考えておられたお施主様。キッチン・洗面室・浴室・トイレは家族が毎日使う場所ですので重点的に取り組みました。デメリットが生じる可能性もよく理解され、どこを犠牲にするかを慎重に考えられました。また、全体のデザインについてはリゾートホテルのような統一感を重視され、提案ごとにご家族で吟味していただきました。おかげさまで素敵な空間が完成しました。
朝に晩に家族で混みあう洗面室。洗面化粧台と洗濯機の2つの機能でピークタイムは狭々。

浴室の移動により広々洗面室が実現!家族が混みあう時間もストレスなく利用できます。

広くなった洗面室にはカウンタータイプの洗面化粧台を設置。お手持ちの椅子に座って、快適にメイクやスキンケアを楽しむことができます。まるでリゾートにいるかのような贅沢な空間です。

トイレとの間仕切り壁にアール壁を採用しました。またパイプスペース(PS)の壁の存在感を差し色使いで緩和しました。リゾートホテルのような水廻り空間が実現しました!

トイレの位置は変わらず、洗面室との間仕切り壁をアールにすることで、ワンランク上の空間になりました!
・部屋が分割されていて、LDKが狭い。
・浴室が狭い。

・和室の一部を利用してせまかった浴室を1116サイズ→1418サイズに。
・残りの和室をLDKに取り込むことにより、
3つの窓からの採光が入り明るい空間に。
・リビング収納やニッチ収納を作ることで、
家族のモノで雑然としがちなLDKもすっきり。





