広島県 O様邸
壁を壊し開放感のある明るい空間へ。
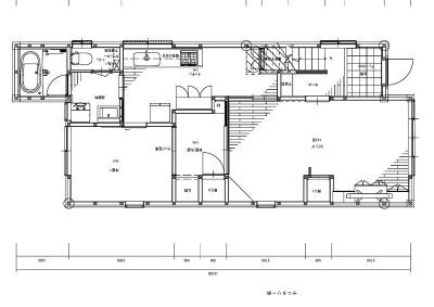
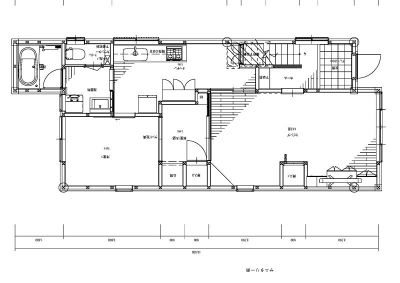
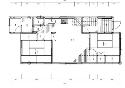
- 物件全体
- ダイニング・リビング
- 浴室
- 洗面
(有)山尾工務店
| 建物種別 | 戸建て |
|---|---|
| 改修規模 | 改装・設備交換 |
| 築年数 | 築45年 |
| 施工期間 | 約90日 |
| 地域 | 広島県 |
| 家族構成 | ご夫婦 |
| テーマ | バリアフリー、明るい部屋、広々 |
-
開放感のある明るい空間
-
干した後は、天井まで上げれるので、邪魔になりません。干していることも忘れるかも?
-
ドアはゆっくり静かに閉まります。音もでません。
-
オフローラにして、寒くなく快適に。
-
くもりにくいミラーで、電気代ゼロ円です。
埋込型のダウンライトで明るさを出し、老後も快適に過ごせるように、お風呂や洗面、ドアをリフォームしました。その他には、室内物干しユニットのホシ姫サマを導入しました。使わない時には天井へ収納し、竿の高さは自由自在に、干し終わったら天井近くへ干せる画期的な物干しです。

お部屋がとても明るくなりました。扉も静かに閉まり、室内物干しは、使いやすい高さまで竿を下せるので楽に干せます。操作も楽にできます。お風呂は床が冷たくなく、浴槽も大きくてよかったです。洗面もカラーがいいです。細かい所まで聞いてくださり、ありがとうございました。

山尾 伸幸
埋込型ダウンライトで開放感のある明るい空間となりました。扉も引き込まれるように静かに閉まります。室内物干しは、お客様の干しやすい高さへ自由自在です。お客様に喜んでいただけて大変嬉しいです。
埋込型ダウンライトで開放感のある明るい空間となりました。扉も引き込まれるように静かに閉まります。室内物干しは、お客様の干しやすい高さへ自由自在です。お客様に喜んでいただけて大変嬉しいです。
施工前のリビング一部

開放感のある明るい空間

干した後は、天井まで上げれるので、邪魔になりません。干していることも忘れるかも?

ドアはゆっくり静かに閉まります。音もでません。
浴槽がせまく、床がつめたく、寒いお風呂でした。

オフローラにして、寒くなく快適に。

くもりにくいミラーで、電気代ゼロ円です。
光があまり入らず、暗い。

明るくなり、開放的に。
このリフォームで採用したパナソニック商品





