広島県 O様邸
ダウンライトで明るく開放的な空間へ。
(有)山尾工務店
| 建物種別 | 戸建て |
|---|---|
| 改修規模 | 改装・設備交換 |
| 築年数 | 築45年 |
| 施工期間 | 約90日 |
| 地域 | 広島県 |
| 家族構成 | ご夫婦 |
| テーマ | バリアフリー、明るい部屋、広々 |
-
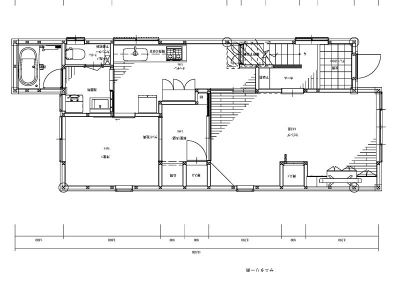
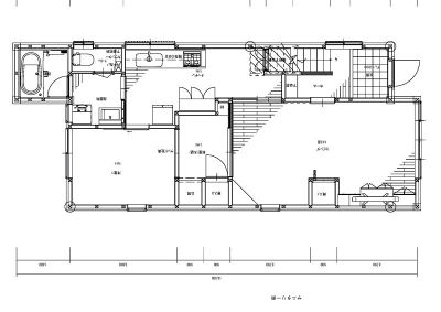
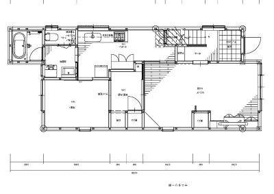
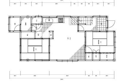
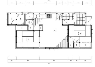
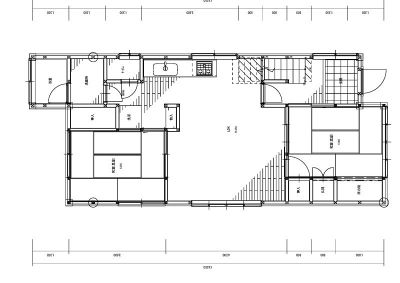
開放感のある明るい空間
-
干した後は、天井まで上げれるので、邪魔になりません。干していることも忘れるかも?
-
ドアはゆっくり静かに閉まります。音もでません。
リビングには、温白色のダウンライトで落ち着いた空間へ。洗面には、昼白色のダウンライトでさわやかで明るい空間に。
リビングの天井には画期的な物干し竿「ホシ姫サマ」。花粉の季節にも室内で快適に干せて、使いやすい高さまで竿を下ろせて操作も簡単です。ドアを閉めるときは、扉が引き込まれるように静かに閉まります。

お部屋がとても明るくなりました。扉も静かに閉まり、室内物干しは、使いやすい高さまで竿を下せるので楽に干せます。操作も楽にできます。お風呂は床が冷たくなく、浴槽も大きくてよかったです。洗面もカラーがいいです。細かい所まで聞いてくださり、ありがとうございました。

山尾 伸幸
埋込型ダウンライトで開放感のある明るい空間となりました。扉も引き込まれるように静かに閉まります。室内物干しは、お客様の干しやすい高さへ自由自在です。お客様に喜んでいただけて大変嬉しいです。
埋込型ダウンライトで開放感のある明るい空間となりました。扉も引き込まれるように静かに閉まります。室内物干しは、お客様の干しやすい高さへ自由自在です。お客様に喜んでいただけて大変嬉しいです。
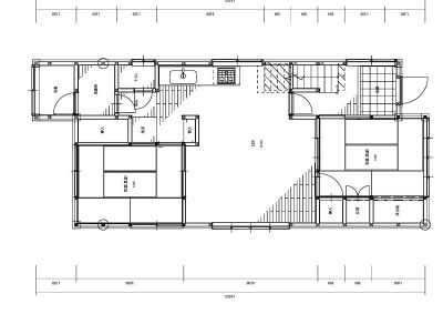
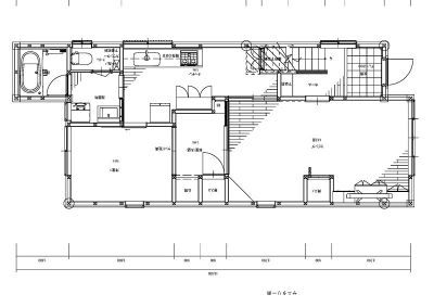
施工前のリビング一部

開放感のある明るい空間

干した後は、天井まで上げれるので、邪魔になりません。干していることも忘れるかも?

ドアはゆっくり静かに閉まります。音もでません。
光があまり入らず、暗い。

明るくなり、開放的に。
このリフォームで採用したパナソニック商品





