兵庫県 Y様邸
全体を見渡せるオープンキッチン!
織田建設(株)
| 建物種別 | 戸建て |
|---|---|
| 改修規模 | 全面リフォーム |
| 築年数 | 築40年 |
| 工事面積 | 約15m2 |
| 施工期間 | 約230日 |
| 地域 | 兵庫県 |
| テーマ | 広々、明るい部屋、団らんキッチン |
-
対面オープンキッチンへ。間接照明で上品に仕上げました。
-
家電収納の前の扉は開閉でき隠す事もできます。
-
ダイニングと一体で使えるキッチン。奥に見えているアーチ開口の奥は食品庫となっています。
全体を見渡せるようにオープンキッチンとしました。後ろには扉で隠せる家電収納を設置、急な来客でも扉をしめればすっきり。キッチン横に食品庫を設置、たくさんの買い置きを可能です。キッチンの上にはスピーカー付きダウンライトを設置、音楽聞きながら料理をするのが楽しみみたいです。

リフォーム前とは見違えるようになった。どの部屋も明るくて気持ちがいい。収納もところどころにたくさんあってうれしい。キッチン上のスピーカ-付ダウンライトがお気に入りです。

吉田 誠
大きなお家なので部屋を広くする事はかんたんですが、単調にならないように天井・照明・壁紙で変化をつけてみました。
ショウルームでお気に入りのパナソニックのLクラスのオープンキッチンに負けないような上品でラグジュアリーな空間を心がけました。お客様にも大変よろこんでいただけてうれしく思います。
大きなお家なので部屋を広くする事はかんたんですが、単調にならないように天井・照明・壁紙で変化をつけてみました。
ショウルームでお気に入りのパナソニックのLクラスのオープンキッチンに負けないような上品でラグジュアリーな空間を心がけました。お客様にも大変よろこんでいただけてうれしく思います。
既存壁付キッチン

対面オープンキッチンへ。間接照明で上品に仕上げました。

家電収納の前の扉は開閉でき隠す事もできます。

ダイニングと一体で使えるキッチン。奥に見えているアーチ開口の奥は食品庫となっています。
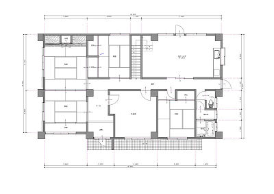
小さく区切られていて狭く感じる。玄関が裏にあり不便。全体的に薄暗い。

水廻りをかためて、LDKを大きくとる間取りに変更。玄関位置も変更。キッチンからの家事同線が便利
このリフォームで採用したパナソニック商品





