採光と温かみのある機能的な空間づくり
- 物件全体
- 浴室・洗面
- キッチン
- ダイニング・外装・屋根
NII建築サービス(株)
| 建物種別 | 戸建て |
|---|---|
| 改修規模 | 改装・設備交換 |
| 築年数 | 築30年 |
| 総工事面積 | 約30m2 |
| 施工期間 | 約25日 |
| 総工事費 | 約920万円 |
| 地域 | 兵庫県 |
| 家族構成 | 夫婦 |
| テーマ | バリアフリー、自然素材、明るい部屋、広々 |
-
元より広い浴槽になり、見た目や機能面でも温かい空間に。
掃除のしやすさも格段に向上。 -
シーライン洗面台を採用し、元よりコンパクトながらボウル部分の面積が広く良い。壁面はモザイク柄キッチンボードでアクセントに。
-
リフォムスキッチンにし、無駄なく収納でき、機能面も充実。フロアや壁、全体的に白の仕上げを多く取り入れ明るさと広さを感じる空間に。
-
納まりのいい家具のオーダーや、明るい色見の仕上げで統一、照明もダウンライトに変更しスッキリとした印象に。
-
明るい色見や仕上げ材にし温かい空間に。キッチンとダイニングの床材を張り分け、異なった仕上げにし、メリハリがでました。
-
天窓と腰窓の変更で十分な明かりが差す空間に。明るめの色見のフロアや腰板にしたことで、より明るい雰囲気に。
浴室リニューアルとキッチン・ダイニングの住設機器及び、内装リフォーム。
・在来浴室から機能性や断熱保温性能に優れたユニットバスに変更し、年中通して快適利用できる浴室空間に。
・キッチンスペースは収納力と使い勝手に優れたシステムキッチンへの変更と周囲家具の新調をし、すっきりとした機能的空間に。
・ダイニングは採光性の充実と温かみや開放感を考えた仕上げに。また、冬場の冷え対策に床暖房を採用。

キッチンの収納量が増え、片付けや整理がし易くなった。シンク周りや排水口周りの掃除がし易く、溜まったゴミの処分も簡単で助かっている。水栓もタッチレス・ボタンでの操作で使いやすい。
ダイニングについて、FIX窓や天窓を替えて部屋が明るくなった。温かみのある仕上がりで気に入っています。

キッチンスペースは元々通路部分が狭い印象で、L型キッチンからI型への変更をし、家具の新調もしたことで、収納性の向上と、見た目にすっきりと広く感じる空間に仕上がりました。また、壁面の仕上げもキッチン周りは掃除のしやすいパネルにし、他部分にタイルを採用したことで、機能面とデザイン性を両立した空間に変わりました。
ダイニングスペースは、北面の1階に位置し、日中の採光不足で暗く感じておられ、天窓の変更で天井面からの採光を確保し、腰窓に大面積のFIX窓を採用し採光量を増やしました。仕上げも桧の無垢材を腰板や窓枠として採用し明るさと温かみのある空間に変わりました。また、床暖房の新設で冬場も快適に過ごせる空間になりました。
お湯がすぐ冷める。掃除の手間がかかるのが大変。

元より広い浴槽になり、見た目や機能面でも温かい空間に。
掃除のしやすさも格段に向上。
浴室改修のタイミングで洗面台も新調したい。

シーライン洗面台を採用し、元よりコンパクトながらボウル部分の面積が広く良い。壁面はモザイク柄キッチンボードでアクセントに。
L型キッチン本体で広く場所を取ってしまっている。

リフォムスキッチンにし、無駄なく収納でき、機能面も充実。フロアや壁、全体的に白の仕上げを多く取り入れ明るさと広さを感じる空間に。
壁面収納などが多く圧迫感がある。

納まりのいい家具のオーダーや、明るい色見の仕上げで統一、照明もダウンライトに変更しスッキリとした印象に。
日中、薄暗い雰囲気に。

明るい色見や仕上げ材にし温かい空間に。キッチンとダイニングの床材を張り分け、異なった仕上げにし、メリハリがでました。

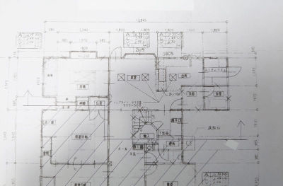
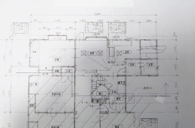
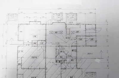
間取りは大きく変更せず、既設の空間を活かしました。





