兵庫県 N様邸

年中快適で使いやすい浴室空間に。

NII建築サービス(株)
お店の情報・お問い合わせ 
データ
建物種別 戸建て
改修規模 改装・設備交換
築年数 築30年
工事面積 約7m2
施工期間 約25日
工事費 約260万円
地域 兵庫県
家族構成 夫婦
テーマ バリアフリー、自然素材、明るい部屋、広々
お近くの「パナソニックの住まいパートナーズ」登録店
リフォームポイント

元の在来浴室では保温性が乏しく、壁の仕上げ関係上、有効スペースが狭くなるが、ユニットバスにすることで断熱保温性に優れ、元よりスペースや浴槽を広く確保できました。また、浴室暖房や床暖の採用、脱衣場にも脱衣室暖房機を設置し冬場の寒い時期でも快適に入浴できる様になりました。

お客様の声
浴室について、掃除がし易く使いやすい。浴槽底のノンスリップ加工があり安全で良い。
キッチンの収納量が増え、片付けや整理がし易くなった。シンク周りや排水口周りの掃除がし易く、溜まったゴミの処分も簡単で助かっている。水栓もタッチレス・ボタンでの操作で使いやすい。
ダイニングについて、FIX窓や天窓を替えて部屋が明るくなった。温かみのある仕上がりで気に入っています。
担当者の声
二井 勇往

キッチンスペースは元々通路部分が狭い印象で、L型キッチンからI型への変更をし、家具の新調もしたことで、収納性の向上と、見た目にすっきりと広く感じる空間に仕上がりました。また、壁面の仕上げもキッチン周りは掃除のしやすいパネルにし、他部分にタイルを採用したことで、機能面とデザイン性を両立した空間に変わりました。
ダイニングスペースは、北面の1階に位置し、日中の採光不足で暗く感じておられ、天窓の変更で天井面からの採光を確保し、腰窓に大面積のFIX窓を採用し採光量を増やしました。仕上げも桧の無垢材を腰板や窓枠として採用し明るさと温かみのある空間に変わりました。また、床暖房の新設で冬場も快適に過ごせる空間になりました。
ビフォーアフター
ビフォー

お湯がすぐ冷める。掃除の手間がかかるのが大変。

アフター

元より広い浴槽になり、見た目や機能面でも温かい空間に。
掃除のしやすさも格段に向上。

ビフォー

浴室改修のタイミングで洗面台も新調したい。

アフター

シーライン洗面台を採用し、元よりコンパクトながらボウル部分の面積が広く良い。壁面はモザイク柄キッチンボードでアクセントに。

ビフォー

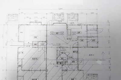
アフター

間取りは大きく変更せず、既設の空間を活かしました。

このリフォームで採用したパナソニック商品
施工店情報
見なおし隊
NII建築サービス(株)

〒669-1203
住所:兵庫県宝塚市下佐曽利山城13
電話:0797-83-5100 FAX:0797-83-5105

■建設業 建設業許可 兵庫県知事許可(般-3)第303195号

お店の情報・お問い合わせ
NII建築サービス(株)のリフォーム事例一覧
近くのお店を探す

Panasonicの住まい・くらし SNSアカウント