兵庫県 N様邸
収納性と機能性のあるおしゃれなキッチンに。
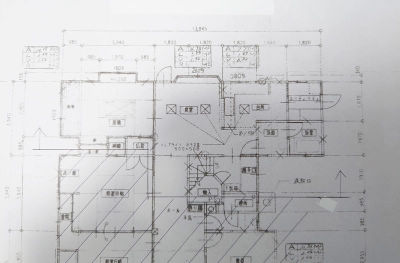
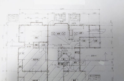
- 物件全体
- 浴室・洗面
- キッチン
- ダイニング・外装・屋根
NII建築サービス(株)
| 建物種別 | 戸建て |
|---|---|
| 改修規模 | 改装・設備交換 |
| 築年数 | 築30年 |
| 工事面積 | 約7m2 |
| 施工期間 | 約25日 |
| 工事費 | 約350万円 |
| 地域 | 兵庫県 |
| 家族構成 | 夫婦 |
| テーマ | バリアフリー、自然素材、明るい部屋、広々 |
-
リフォムスキッチンにし、無駄なく収納でき、機能面も充実。フロアや壁、全体的に白の仕上げを多く取り入れ明るさと広さを感じる空間に。
-
納まりのいい家具のオーダーや、明るい色見の仕上げで統一、照明もダウンライトに変更しスッキリとした印象に。
キッチン本体を収納力のあるリフォムスキッチンに変更。スキマレスシンクや、ホットクリーンフードを採用し掃除のしやすいキッチンに。調理補助機能付のコンロ、食洗器、センサー水栓を採用し機能面でも使いやすく。
家具や壁の仕上げを工夫し広く感じる空間に。

浴室について、掃除がし易く使いやすい。浴槽底のノンスリップ加工があり安全で良い。
キッチンの収納量が増え、片付けや整理がし易くなった。シンク周りや排水口周りの掃除がし易く、溜まったゴミの処分も簡単で助かっている。水栓もタッチレス・ボタンでの操作で使いやすい。
ダイニングについて、FIX窓や天窓を替えて部屋が明るくなった。温かみのある仕上がりで気に入っています。
キッチンの収納量が増え、片付けや整理がし易くなった。シンク周りや排水口周りの掃除がし易く、溜まったゴミの処分も簡単で助かっている。水栓もタッチレス・ボタンでの操作で使いやすい。
ダイニングについて、FIX窓や天窓を替えて部屋が明るくなった。温かみのある仕上がりで気に入っています。

二井 勇往
キッチンスペースは元々通路部分が狭い印象で、L型キッチンからI型への変更をし、家具の新調もしたことで、収納性の向上と、見た目にすっきりと広く感じる空間に仕上がりました。また、壁面の仕上げもキッチン周りは掃除のしやすいパネルにし、他部分にタイルを採用したことで、機能面とデザイン性を両立した空間に変わりました。
ダイニングスペースは、北面の1階に位置し、日中の採光不足で暗く感じておられ、天窓の変更で天井面からの採光を確保し、腰窓に大面積のFIX窓を採用し採光量を増やしました。仕上げも桧の無垢材を腰板や窓枠として採用し明るさと温かみのある空間に変わりました。また、床暖房の新設で冬場も快適に過ごせる空間になりました。
キッチンスペースは元々通路部分が狭い印象で、L型キッチンからI型への変更をし、家具の新調もしたことで、収納性の向上と、見た目にすっきりと広く感じる空間に仕上がりました。また、壁面の仕上げもキッチン周りは掃除のしやすいパネルにし、他部分にタイルを採用したことで、機能面とデザイン性を両立した空間に変わりました。
ダイニングスペースは、北面の1階に位置し、日中の採光不足で暗く感じておられ、天窓の変更で天井面からの採光を確保し、腰窓に大面積のFIX窓を採用し採光量を増やしました。仕上げも桧の無垢材を腰板や窓枠として採用し明るさと温かみのある空間に変わりました。また、床暖房の新設で冬場も快適に過ごせる空間になりました。
L型キッチン本体で広く場所を取ってしまっている。

リフォムスキッチンにし、無駄なく収納でき、機能面も充実。フロアや壁、全体的に白の仕上げを多く取り入れ明るさと広さを感じる空間に。
壁面収納などが多く圧迫感がある。

納まりのいい家具のオーダーや、明るい色見の仕上げで統一、照明もダウンライトに変更しスッキリとした印象に。

間取りは大きく変更せず、既設の空間を活かしました。
このリフォームで採用したパナソニック商品





