京都府 K様邸
動線を活かして家事の軽減とプライベートの確保
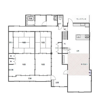
- 物件全体
- キッチン・ダイニング・リビング
- 浴室
- 洗面・その他
- トイレ
- 玄関・廊下
スマイリングにしかわ
| 建物種別 | 戸建て |
|---|---|
| 改修規模 | 改装・設備交換 |
| 築年数 | 築40年 |
| 工事面積 | 約8m2 |
| 施工期間 | 約90日 |
| 工事費 | 約60万円 |
| 地域 | 京都府 |
| 家族構成 | ご夫婦 お二人暮らし |
| テーマ | 団らんキッチン、明るい部屋、オール電化、吹き抜け、広々 |
-
洗面台をランドリールームと入れ替えて動線を良くしました。勝手口を塞ぎ暖かくなりました。
-
浴室横にランドリールームを移し入浴時すぐに洗濯物を洗濯機に投入できますね。
洗面室とランドリールームがアコーディオンカーテンで仕切られていましたがご子息さま家族が帰省された際にプライベート確保の為、部屋を分けさせて頂き洗面台を移し解消しました。

キッチンリビングと応接間の間にトイレがありましたが、一部屋にし家族が集まれる部屋にしたかった。設備の老朽化、老後の事も考え水廻り全てを一新したかった。京都の冬は底冷えし寒く快適に過ごせるようお願いしました。また、吹き抜けの提案をしてもらい天井が高く開放的で大変気に入ってます。提案の際メリットデメリットの詳しい説明が有り良かったです。デザイン、機能性共に全て満足です!
西川亮治
築40年以上の立派な日本建築のお家で、梁や柱を活かした間取り変更で広々としたリビングダイニングになりました。ご近所にお住いのお嬢様は施工中に幾度とお顔を出して頂き、完成を楽しみにしていただいていました。お施主様の思っておられる仕上がりとギャップが生じないよう施工前、施工中とも何度も打合せをさせて頂き想像以上の仕上がりに満足頂きました。
築40年以上の立派な日本建築のお家で、梁や柱を活かした間取り変更で広々としたリビングダイニングになりました。ご近所にお住いのお嬢様は施工中に幾度とお顔を出して頂き、完成を楽しみにしていただいていました。お施主様の思っておられる仕上がりとギャップが生じないよう施工前、施工中とも何度も打合せをさせて頂き想像以上の仕上がりに満足頂きました。
広い洗面室とランドリールーム、アコーデイオンカーテンでの仕切りのみでした。

洗面台をランドリールームと入れ替えて動線を良くしました。勝手口を塞ぎ暖かくなりました。
ランドリールームには勝手口が有り冬は寒い。

浴室横にランドリールームを移し入浴時すぐに洗濯物を洗濯機に投入できますね。
家族が集まった時にでもゆとりのある空間となりました。吹き抜けや飾り棚の発想はなく提案して頂いて良かったです。全てお気に入りです!

立派な日本建築でしたのでリフォームしない箇所とのバランスを考慮しデザイン致しました。施工中は毎日差し入れまでして頂いた事、私の提案の際は「西川さんに任せます!」と信頼を頂き施工を進めさせて頂きました事に感謝しています。
このリフォームで採用したパナソニック商品





