ホテルライクなイメージにしながら機能的に。
サンカラーズリフォーム 御影店
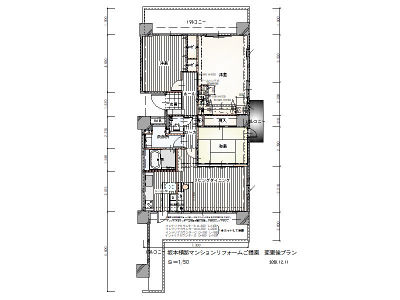
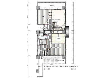
| 建物種別 | マンション |
|---|---|
| 改修規模 | 全面リフォーム |
| 築年数 | 築25年 |
| 工事面積 | 約7m2 |
| 施工期間 | 約45日 |
| 工事費 | 約170万円 |
| 地域 | 兵庫県 |
| 家族構成 | 2人 |
| テーマ | 明るい部屋、広々 |
-
壁から壁にピタッと納まるようにCラインで考え両袖壁を鏡面石目のボードを貼った。ホテルのような豪華な雰囲気が出る事を考えて提案した。
-
洗濯機スペースの上も通常の棚を設置するのでは生活感も出やすいのでランドリーラックを採用した。
-
正面から見てピタッと納まるように壁面をふかしすっきりと見えるように考えた。
-
普段は戸建てにお住まいでこちらは別宅のような感じだったのでライン照明やアクセントパネル・エステケアシャワー・スゴピカ浴槽などを採用し清掃性もよく美しく機能的な浴室を提案した。
CラインでW1000に特注し壁をふかして調整し、三面鏡はW900を採用。汚れやすい両サイドの壁は石目のパネルを張り豪華な雰囲気にした。洗濯機上の部分にはデザインと機能性を重視したランドリーラックを使いすっきりと見えるようにした。隣接する浴室はライン照明で調色できるタイプにして、スゴピカ浴槽やエステケアシャワーを採用しアクセントパネルも石目柄にした。生活感の出ない雰囲気になるように提案。


写真は完工直後のもので家具などは入っていないのですが、全て新しく購入されて日常とは違う使い方を楽しまれています。シンプルでデザインも綺麗で掃除がし易い浴室・洗面・トイレ・キッチンと全てパナソニックのものを使って頂き内装の雰囲気と合ったグレード感のあるお住まいになったと思います。購入時にはすべての設備も一新された状態でしたが使い勝手やデザインなど、お客様が満足するには足らないもので一つひとつを自分の暮らしの為に丁寧に選び施工して形になったものは意味合いも深くコロナ禍の工事であり、完成後は旅行もままならないのでこの別宅で楽しんで頂いていることに喜びを感じております。
普及クラスのよくある洗面台

壁から壁にピタッと納まるようにCラインで考え両袖壁を鏡面石目のボードを貼った。ホテルのような豪華な雰囲気が出る事を考えて提案した。

洗濯機スペースの上も通常の棚を設置するのでは生活感も出やすいのでランドリーラックを採用した。

正面から見てピタッと納まるように壁面をふかしすっきりと見えるように考えた。
新しいというだけで特徴もなく清掃性にも優れた部分はあまり無かった。

普段は戸建てにお住まいでこちらは別宅のような感じだったのでライン照明やアクセントパネル・エステケアシャワー・スゴピカ浴槽などを採用し清掃性もよく美しく機能的な浴室を提案した。
別々の洋室があり子供室のような感じで使われていた。全体的に設備の機能が低く、一新したいとお考えだった。

2つの洋室を繋げ、大容量のクローゼットとデスクを設け、快適な奥様の部屋にした。ロケーションも良く、快適。





