ホテルライクな洗面・脱衣スペース、以前は納戸だった場所
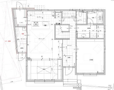
- 物件全体
- ダイニング・リビング
- 玄関・廊下
- 個室
- 洗面
株式会社アラカーサ
| 建物種別 | 戸建て |
|---|---|
| 改修規模 | 増改築 |
| 築年数 | 築28年 |
| 工事面積 | 約7m2 |
| 施工期間 | 約90日 |
| 地域 | 兵庫県 |
| 家族構成 | 二人 |
| テーマ | 団らんキッチン、広々 |
-
納戸があった場所に洗面スペースを移動し、脱衣スペースの奥にガス乾燥機が置けるランドリーコーナーを新設。棚板は湿気に強いベリティスのインテリアカウンターを採用しました
-
ベリティスの引き戸がすっきり納まるよう壁に凹凸を付けて洗面カウンターを設置。美しい見た目を追求しました
納戸だった空間に洗面スペースを移動したことで、バスルームやトイレにもゆとりが生まれました。脱衣スペースの隣に新設した引き出しやパイプハンガー、ガス乾燥機が置けるラックを備えたランドリーコーナーを新設したことで、水回りがいっそう便利に。ベリティスの引き戸やカウンターがデザインのポイントで、落ち着きあるホテルライクな雰囲気に仕上がっています。

築26年、汚い、捨てられない、片付かないストレス、気軽に人を呼べない苛立ち、くつろぎのない空間、疲れのとれない日々、遂に別れを告げる決心をした!この決断ができるもう最後の年齢だと思ったからだ。癌も克服できたんだからやれると。そして、見事に生まれ変わった我が家!こんな日を迎えることができるなんて夢にも思ってなかった。玄関を入ると皆が、えー!これ住まい?わぁ!ホテルみたいなおトイレ!洗面所!と感動の嵐。元の面影は無し。アラカーサ様のセンスにお任せし、温かい素晴らしい職人さん達にも恵まれた。ただいま!おかえりなさい!まだ続いてほしかったくらいの楽しい工事期間も問題なくあっという間に過ぎ、遂に完成した!
毎日疲れて帰宅する夫は、車庫から増築した自動で鍵の開く裏口玄関の扉を開け、まずは、あー、いいなぁと入ってくる。食事を終えるやいなやすぐに畳コーナーに移動する。なんとそこには念願の掘り座卓ができたのだ。テレビを見ながら掘り座卓でくつろぐのが夢だった夫は、快適だなぁ、最高だなぁと何回言っただろう!コロナ禍の中、旅行にもいけない日々も旅館のごとく変貌を遂げた我が家で非日常を味わっている。何不自由なく至れり尽くせりの設計に大満足の毎日を過ごしている。あと何年生きられるかわからないけど、死ぬまでこの生まれ変わった我が家で過ごせたらと願っている。新しく和室から生まれ変わった応接室は、将来的には介護ベッドを入れ、介護部屋になる予定だ。そんな準備もでき、心のゆとりも生まれた。ほんとにやってよかったリノベーション!出会えてよかったアラカーサ様!と感謝の日々を過ごしている。

収納力が低く、洗面化粧台の正面に窓があることも気になった為、思い切って移動させるプランをご提案しました

納戸があった場所に洗面スペースを移動し、脱衣スペースの奥にガス乾燥機が置けるランドリーコーナーを新設。棚板は湿気に強いベリティスのインテリアカウンターを採用しました
洗面スペースに変更される前の納戸。壁に沿って婚礼ダンスが並んでいました

ベリティスの引き戸がすっきり納まるよう壁に凹凸を付けて洗面カウンターを設置。美しい見た目を追求しました
一般的な間取りではありますが、孤立した暗いキッチンや洗面化粧台の正面に窓がある洗面スペース、タンスを置くと使い辛かった細長い納戸など、気になる点はちらほらとありました。

玄関とLDKを緩やかに繋いで開放的な大空間とし、ぐるりと回遊できる動線を計画しました。サブ玄関を増築し、スペースの半分をパントリーとして活用。水回りは納戸をなくして再構築し、ゆとりのある空間に一新しました。使っていなかった和室は応接室に。将来はベッドルームとして使っていただける空間になっています。





