兵庫県 K様邸

清潔を保つ自動水栓は、コロナ禍にもマッチ!

株式会社シンエイ・シンエイリフォーム
お店の情報・お問い合わせ 
データ
建物種別 マンション
改修規模 全面リフォーム
築年数 築10年
工事面積 約1m2
施工期間 約75日
工事費 約53万円
地域 兵庫県
家族構成 ご夫婦2人
テーマ 団らんキッチン、バリアフリー、明るい部屋、広々、その他
お近くの「パナソニックの住まいパートナーズ」登録店
リフォームポイント

トイレは自動水栓にしたことで、清潔を保つことができてコロナ感染防止対策にもなった。壁紙はご主人様の「健康カラー」黄色をご選択。手洗器側の壁にはアクセントとして白のタイル調をセレクト。やさしく清潔感のある空間となりました。

お客様の声
年齢を重ねても気持ちは若くいたいという想いがあり、そのためにはいきいきと楽しく暮らすことが必要と感じていた。生活感を感じさせないホテルライフのような空間づくりが、毎日楽しく暮らせる秘訣ではないかという思いがあった。その思いを叶えてもらえて、快適度120%。コロナ禍で半リタイヤ生活を迎え、逆にそれが追い風となって「おうち愛」が増し、更に家にいる時間を大切にしようという思いが強くなった。思った通り、若々しく毎日快適に過ごしている。
担当者の声
林  清華

終の棲家は年齢を重ねているからこそ毎日が楽しくなる空間にしたいとかねてから考えておられたK様。遠くに住んでおられる娘様ご夫婦の新居を参考に、ありきたりではなくこだわりのリフォームを目指されました。奥様のご要望でフロア材をスタイリッシュなグレーの石目調で全室統一され、ネイビー・グレー・ダークブラウンの3色を基調として次々に思い切ったデザインを選択されました。照明プランもこだわり、ホテルライクな居心地の良い空間が完成しました。
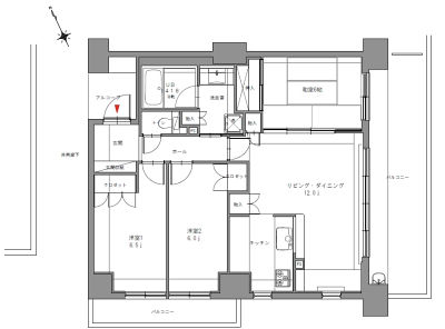
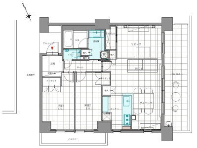
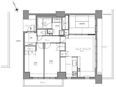
ビフォーアフター
ビフォー

せまいスペースだから手洗器が設置できるかと心配されていた。84㎝×132㎝あるので充分なスペース。

アフター

手洗いカウンターはインテリア性を重視して木目柄をご選択。トイレは自動水栓にしたことで、清潔の保持はもちろんコロナ感染防止対策にもなり、来客時にも安心してご使用して頂ける。

ビフォー

●対面キッチンは吊戸があるため光が入りにくく閉鎖的で暗かった。●お手持ちのダイニングテーブルやソファを配置するにはリビングが狭い●広いバルコニーはゆったりしているが、殺風景。

アフター

●吊戸を撤去しフラット対面ペニンシュラ型キッチンにすることでLDとの一体感を持たせた。更に和室を取り込んで広々LDKに。●バルコニーにはエクステリアタイルを敷き詰めてLDKと一体的なアウトドアリビングに。

このリフォームで採用したパナソニック商品
現行のおすすめ商品
施工店情報
見なおし隊
株式会社シンエイ・シンエイリフォーム

〒663-8122
住所:兵庫県西宮市小曽根町4-5-16
電話:0120-47-1662 FAX:0798-48-0354

■建設業 建設業許可 兵庫県知事登録(般-4)第220250号

お店の情報・お問い合わせ
株式会社シンエイ・シンエイリフォームのリフォーム事例一覧
近くのお店を探す

Panasonicの住まい・くらし SNSアカウント