兵庫県 Y様邸
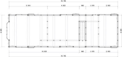
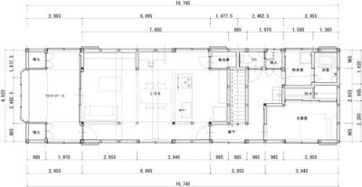
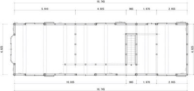
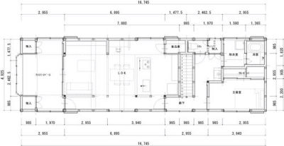
生活スタイルに合わせた動線
コープ住宅(株)
| 建物種別 | 戸建て |
|---|---|
| 改修規模 | 全面リフォーム |
| 築年数 | 築20年 |
| 工事面積 | 約3.1m2 |
| 施工期間 | 約50日 |
| 工事費 | 約220万円 |
| 地域 | 兵庫県 |
| 家族構成 | ご夫婦2人 と ワンちゃんネコちゃん |
| テーマ | 明るい部屋、オール電化、ペット |
-
水廻りを集約。廊下が暗くならないよう、トイレ側から光も取り入れました。
-
共働きなので脱衣室にホシ姫サマを設置。雨や時間帯を心配せず洗濯が干せる環境です。
-
時間を気にせず使える2人だけのプライベートバスルーム。
洗面を廊下に配置することで、帰宅後すぐに手を洗う事が出来、脱衣室も広く使うことが出来ます。

元々と雰囲気がごろっと変わり、奥さま希望のブルー系もアクセントになっていてイメージ通りになりました。追加してもらった家具もコーディネートされていて部屋の雰囲気に合っていて良かったです。

福山 翔子
たくさんの計画プランの中からお二人の生活スタイルに合う間取りを選んで頂き、コーディネートは『こんな空間にしたい』というご要望がはっきりとお持ちでしたので、一緒に考えさせて頂けて楽しかったです。新しい生活のスタートもお手伝いをさせていただき光栄でした。
たくさんの計画プランの中からお二人の生活スタイルに合う間取りを選んで頂き、コーディネートは『こんな空間にしたい』というご要望がはっきりとお持ちでしたので、一緒に考えさせて頂けて楽しかったです。新しい生活のスタートもお手伝いをさせていただき光栄でした。
水廻りのない空間。

水廻りを集約。廊下が暗くならないよう、トイレ側から光も取り入れました。
ベランダがないので洗濯を干すスペースがない。

共働きなので脱衣室にホシ姫サマを設置。雨や時間帯を心配せず洗濯が干せる環境です。
隣の母屋にしかお風呂場がないのでお嫁さんがお風呂に行きにくい。

時間を気にせず使える2人だけのプライベートバスルーム。
居室としての計画しかしていなかった為、水廻りが全く無い。息子夫婦の新生活の為の空間を作りたい。

水廻り設備を配置し、新居として生活できる空間をつくりました。 LDKを広くとり、将来は子ども部屋も確保できるよう計画した間取りになっています。
このリフォームで採用したパナソニック商品





