3.5畳大のウォークインクローゼットなので、ご家族の衣類等が全て収納できます!
-
娘様世帯3人分の衣類等を全て収納出来るように3.5畳大の大きなスペースを確保した。
-
ハンガーパイプや可動棚を設け自由に引き出し収納をプラスして使いやすくして頂けるようにシンプルにした。
-
お客様のお好みで鳥や花のモチーフのクロスで明るい印象にした。
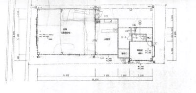
玄関・キッチンダイニングはお母さまと共用し、他はしっかりとプライベート空間を確保。土間に鋼製束で床組を新設し土台・根太・断熱材・下地合板を施工し、スケルトンリフォームのような形でプランニングを進めた。既存のキッチン・ダイニングの床高を基準に、バリアフリーになるように床を新設し、極力引戸を設けて動きやすく、安全な住まいにした。また複層サッシを新設して、防犯の為合わせガラスを採用。ゾーニングは家具をあまり置きたくないとのご要望で大容量のウォークインクローゼットを設け、和室や洗面所などにも収納をしっかりと計画した。既存キッチンの方からは扉を新設して大きなパントリ―を新設。
広い店舗を住まいにするという事で最初に5プラン程作り、ゾーニングを中心に絞り込んでいきました。拘りの生活が伺えたので信頼の於けるメーカーの商品を中心にプランニングしました。既存店舗だという事で、土間から束を立て床下地組を作り、既存キッチンと床高を合わせるように施工しました。サッシは準防火地域の為、防火認定仕様にし、防犯の事もあり合わせガラスとしました。採光や通風を考慮してゾーニングをしつつ、他にも使っていない部屋が多くあるのでご家族皆様が快適に住まえるように考えました。
既存店舗だった所

娘様世帯3人分の衣類等を全て収納出来るように3.5畳大の大きなスペースを確保した。

ハンガーパイプや可動棚を設け自由に引き出し収納をプラスして使いやすくして頂けるようにシンプルにした。

お客様のお好みで鳥や花のモチーフのクロスで明るい印象にした。
長年こちらの地域で店舗をされており、ご主人が他界されたこともあり同居となった。一階スペース以外にも二階もゆったりとした空間になっており、今回のゾーニングも既存キッチンダイニングを広げる形になったが娘様世帯のスペースも十分に確保できた。

ご家族のプライベート空間として店舗部分を改装。応接間や個室は他のスペースにあるので今回同居される娘様世帯のファミリー空間の充実がメインのリフォームとなった。また既存キッチンはお母さまと一緒に使い食事も一緒にされるので、ハイグレードで機能的な仕様とした。
- インテリア建材 ベリティス
- 内装ドア ベリティス
- 造作部材 ベリティス
- LED照明 シーリングライト






