兵庫県 西宮市 M様邸
3帖の納戸が洗面室に~洗面脱衣+洗濯スペースのゆとり空間が生まれました!
- 物件全体
- ダイニング・リビング
- 洗面
- トイレ
- その他
株式会社シンエイ・シンエイリフォーム
| 建物種別 | 戸建て |
|---|---|
| 改修規模 | 全面リフォーム |
| 築年数 | 築29年 |
| 工事面積 | 約5m2 |
| 施工期間 | 約105日 |
| 工事費 | 約90万円 |
| 地域 | 兵庫県 |
| 家族構成 | 夫婦二人 |
| テーマ | 団らんキッチン、バリアフリー、明るい部屋、広々、その他 |
-
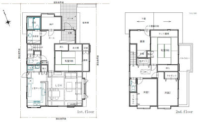
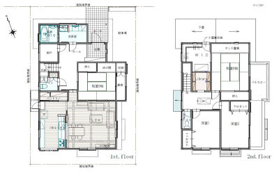
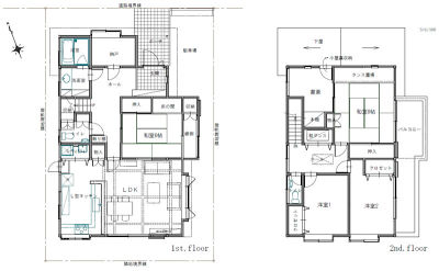
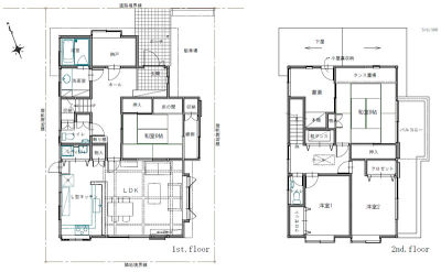
浴室を挟んで西側に2帖の洗面室、北側に3帖の納戸という配置でしたが、納戸と洗面室の位置変えにより3帖広々洗面室が実現。洗濯機も余裕で取り込めました。また引出し型の洗面化粧台は使い勝手が格段に良くなりました。
●洗濯機がないため不便だった洗面室。お子様たちが独立され余ってしまっていた3帖の納戸を2帖の洗面室と入れ替えることにより、ゆとりの3帖の新洗面室になりました。これにより脱衣→洗濯物→入浴の動作が効率的になりました。適「材」適所・適「広」適所の計画です。

●女性にとってキッチンは一番夢がふくらむところだと思いますが、新築当時キッチンの打合せを楽しみに待っていたら「もう発注しました。」と言われてしまいました。そんな苦い思い出を30年の時を経て今回のリフォームで払拭することができました。打合せではこちらの要望だけでなく使い勝手や動線・パントリーの収納などの提案もしていただき満足しています。●洗面室と納戸を入れ替えたことで洗面室空間にゆとりができたことや、ただのタンス置場と化していた収納をライブラリースペースに生まれ変わらせる提案を頂いたこともよかったです。

林 清華
戸建て住宅の全面リフォーム。M様の一番のご要望は、なんといってもキッチンの使い勝手の悪さを改善することでした。収納は多ければいいというものではない、また空間は広ければいいというものではない、ということは当然のことですが、それによって30年ご不便を感じてこられたM様から生の声をお聞きして、プランニングの大切さをあらためて実感させて頂きました。
戸建て住宅の全面リフォーム。M様の一番のご要望は、なんといってもキッチンの使い勝手の悪さを改善することでした。収納は多ければいいというものではない、また空間は広ければいいというものではない、ということは当然のことですが、それによって30年ご不便を感じてこられたM様から生の声をお聞きして、プランニングの大切さをあらためて実感させて頂きました。
壁一面に造り付られた開き収納に圧迫された洗面室は、洗濯機を置くスペースがなく、使い勝手が悪く暗い空間でした。

浴室を挟んで西側に2帖の洗面室、北側に3帖の納戸という配置でしたが、納戸と洗面室の位置変えにより3帖広々洗面室が実現。洗濯機も余裕で取り込めました。また引出し型の洗面化粧台は使い勝手が格段に良くなりました。
●キッチンの動線が悪く閉鎖的で暗かった。キッチン横の収納は奥行が深く整理しにくかった。●キッチンの雑然とした様子がリビングから丸見えだった。●洗面室は使い勝手の悪い収納が壁面に造り付けてあり暗かった。●トイレに収納が多すぎて使えていない。●ご主人様の本棚が2階の奥深い場所に造り付けられていた。

●L型キッチンをI型に変更し動線を改善。収納もしやすく明るい。併設したパントリーは便利●3帖の納戸を2帖の洗面室と入れ替え。ゆとりの洗面室で脱衣→洗濯物→入浴の動作が効率的に。●2階のタンス置場と納戸を見直して、ライブラリー空間に。ご主人様のたくさんの本を快適に収納し長居したくなる空間に。
このリフォームで採用したパナソニック商品





