兵庫県 西宮市 M様邸
わが家のライブラリー~読書好きのぜいたく空間
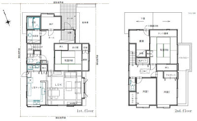
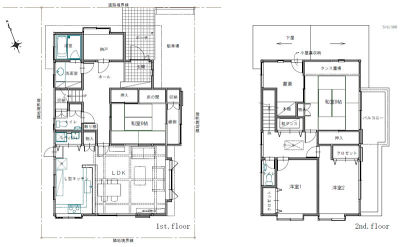
- 物件全体
- ダイニング・リビング
- 洗面
- トイレ
- その他
株式会社シンエイ・シンエイリフォーム
| 建物種別 | 戸建て |
|---|---|
| 改修規模 | 全面リフォーム |
| 築年数 | 築29年 |
| 工事面積 | 約3m2 |
| 施工期間 | 約105日 |
| 工事費 | 約50万円 |
| 地域 | 兵庫県 |
| 家族構成 | 夫婦二人 |
| テーマ | 団らんキッチン、バリアフリー、明るい部屋、広々、その他 |
-
床から天井までたっぷり収納できるライブラリーは、美術書や歴史書の様々な大きさに対応するため可動棚としました。また2階ホールからすぐに入れる配置は、読書好きのご主人様が長居したくなる空間に!
●ご主人様がお持ちの美術書や歴史書などをまとめて収納する本棚は、2階和室の奥にある納戸内にあり、ご不便を感じておられました。2階のタンス置場と本棚のある納戸を見直すことによって、適「材」適所のライブラリー空間が生まれました。ご主人様のたくさんの本がすっきり収納できます。

●女性にとってキッチンは一番夢がふくらむところだと思いますが、新築当時キッチンの打合せを楽しみに待っていたら「もう発注しました。」と言われてしまいました。そんな苦い思い出を30年の時を経て今回のリフォームで払拭することができました。打合せではこちらの要望だけでなく使い勝手や動線・パントリーの収納などの提案もしていただき満足しています。●洗面室と納戸を入れ替えたことで洗面室空間にゆとりができたことや、ただのタンス置場と化していた収納をライブラリースペースに生まれ変わらせる提案を頂いたこともよかったです。

林 清華
戸建て住宅の全面リフォーム。M様の一番のご要望は、なんといってもキッチンの使い勝手の悪さを改善することでした。収納は多ければいいというものではない、また空間は広ければいいというものではない、ということは当然のことですが、それによって30年ご不便を感じてこられたM様から生の声をお聞きして、プランニングの大切さをあらためて実感させて頂きました。
戸建て住宅の全面リフォーム。M様の一番のご要望は、なんといってもキッチンの使い勝手の悪さを改善することでした。収納は多ければいいというものではない、また空間は広ければいいというものではない、ということは当然のことですが、それによって30年ご不便を感じてこられたM様から生の声をお聞きして、プランニングの大切さをあらためて実感させて頂きました。
2階和室を通って奥にある納戸の一部に作り付けられた本棚は奥行が深く、また上部・下部のスペースは取り出しにくかった。

床から天井までたっぷり収納できるライブラリーは、美術書や歴史書の様々な大きさに対応するため可動棚としました。また2階ホールからすぐに入れる配置は、読書好きのご主人様が長居したくなる空間に!
●キッチンの動線が悪く閉鎖的で暗かった。キッチン横の収納は奥行が深く整理しにくかった。●キッチンの雑然とした様子がリビングから丸見えだった。●洗面室は使い勝手の悪い収納が壁面に造り付けてあり暗かった。●トイレに収納が多すぎて使えていない。●ご主人様の本棚が2階の奥深い場所に造り付けられていた。

●L型キッチンをI型に変更し動線を改善。収納もしやすく明るい。併設したパントリーは便利●3帖の納戸を2帖の洗面室と入れ替え。ゆとりの洗面室で脱衣→洗濯物→入浴の動作が効率的に。●2階のタンス置場と納戸を見直して、ライブラリー空間に。ご主人様のたくさんの本を快適に収納し長居したくなる空間に。
このリフォームで採用したパナソニック商品





