適「光」適所と外部動線の改善で、毎日の生活が格段に楽しく豊かになる!
株式会社シンエイ・シンエイリフォーム
| 建物種別 | 戸建て |
|---|---|
| 改修規模 | 全面リフォーム |
| 築年数 | 築29年 |
| 工事面積 | 約22m2 |
| 施工期間 | 約105日 |
| 工事費 | 約120万円 |
| 地域 | 兵庫県 |
| 家族構成 | 夫婦二人 |
| テーマ | 団らんキッチン、バリアフリー、明るい部屋、広々、その他 |
-
窓の幅を1.0間のものに取替えて外部に庇を設置することにより、適度な光を取り入れる窓になりました。
-
東側の窓の幅も西側と同様に1.0間幅の掃き出し窓に入替えました。お隣のご実家への行き来がスムーズになり、ご高齢のご両親の様子を見に行く動線が短くなりました。
-
対面カウンターのダイニング側には奥様のご趣味であるブリザードフラワーを飾るためにニッチを計画。また、リビングから丸見えだったキッチン内部をタテ格子でゆるやかに仕切り開放感を残しました。
●2カ所あるリビングの窓の一つは南西に位置し、大き過ぎてまぶしすぎるため始終カーテンを閉めっぱなしに。また東側の窓は下部に収納のある出窓のため、隣家のご実家との行き来をしたりお庭に出入りすることができず、長い間ご不便を感じて住まわれてきました。●リビングは既存の化粧梁と対面カウンターを活かした提案をしました。タテ格子やブラック色の配線ダクトレール・スポットライト・アイアン調のカーテンレール・こげ茶色のアクセント壁を採用することで、格調高い雰囲気を引き継ぎながらもスマートな空間になりました。


戸建て住宅の全面リフォーム。M様の一番のご要望は、なんといってもキッチンの使い勝手の悪さを改善することでした。収納は多ければいいというものではない、また空間は広ければいいというものではない、ということは当然のことですが、それによって30年ご不便を感じてこられたM様から生の声をお聞きして、プランニングの大切さをあらためて実感させて頂きました。
リビング南西の窓は幅1.5間あり高さは2.2m。まぶし過ぎて不快感を感じるほどで、始終カーテンを閉めっぱなしに。

窓の幅を1.0間のものに取替えて外部に庇を設置することにより、適度な光を取り入れる窓になりました。
幅1.5間の大型の出窓は南西側の窓と同じくまぶしすぎる上、両サイドの幅の狭い部分しか開閉ができず、東隣りのご実家へ行き来することができなかった。また、下部の収納は高さが低く使いづらいかった。

東側の窓の幅も西側と同様に1.0間幅の掃き出し窓に入替えました。お隣のご実家への行き来がスムーズになり、ご高齢のご両親の様子を見に行く動線が短くなりました。
化粧梁・カウンター・開口枠など重厚な雰囲気が時代を感じさせる。生活用品や飾り物などで散らかりがちな対面カウンター。

対面カウンターのダイニング側には奥様のご趣味であるブリザードフラワーを飾るためにニッチを計画。また、リビングから丸見えだったキッチン内部をタテ格子でゆるやかに仕切り開放感を残しました。
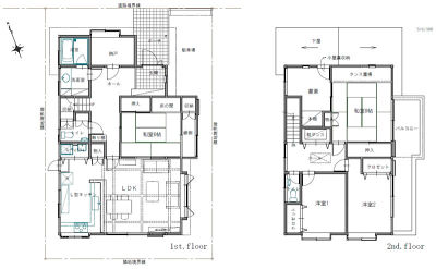
●キッチンの動線が悪く閉鎖的で暗かった。キッチン横の収納は奥行が深く整理しにくかった。●キッチンの雑然とした様子がリビングから丸見えだった。●洗面室は使い勝手の悪い収納が壁面に造り付けてあり暗かった。●トイレに収納が多すぎて使えていない。●ご主人様の本棚が2階の奥深い場所に造り付けられていた。

●L型キッチンをI型に変更し動線を改善。収納もしやすく明るい。併設したパントリーは便利●3帖の納戸を2帖の洗面室と入れ替え。ゆとりの洗面室で脱衣→洗濯物→入浴の動作が効率的に。●2階のタンス置場と納戸を見直して、ライブラリー空間に。ご主人様のたくさんの本を快適に収納し長居したくなる空間に。
- インテリアカウンター リビエ[終了品]
- LED照明 ダウンライト
- 照明 スポットライト
- 照明器具
- インターホン・テレビドアホン
- キッチン ラクシーナ





