兵庫県 西宮市 M様邸
信楽焼で和モダン~くつろぎトイレ!
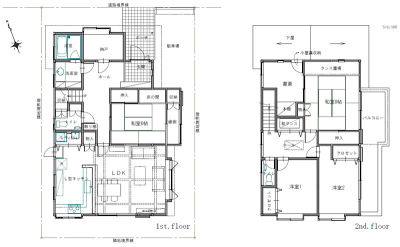
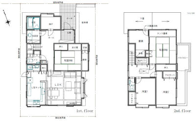
- 物件全体
- ダイニング・リビング
- 洗面
- トイレ
- その他
株式会社シンエイ・シンエイリフォーム
| 建物種別 | 戸建て |
|---|---|
| 改修規模 | 全面リフォーム |
| 築年数 | 築29年 |
| 工事面積 | 約3m2 |
| 施工期間 | 約105日 |
| 工事費 | 約70万円 |
| 地域 | 兵庫県 |
| 家族構成 | 夫婦二人 |
| テーマ | 団らんキッチン、バリアフリー、明るい部屋、広々、その他 |
-
トイレ本体はアラウーノSⅡをご採用。もともと収納スペースだったところを手洗いスペースとして利用。お孫さんたちが利用されても床が水浸しになることはもうありません。下部の配管スペースは収納として開き戸を取付けました。
●一部階段下にかかっていて収納多過ぎ+広過ぎのトイレ。ご夫妻の満場一致で一目惚れされた信楽焼の手洗器をテーマにして、適「材」適所・適「広」適所の和モダンなくつろぎトイレに生まれ変わりました!

●女性にとってキッチンは一番夢がふくらむところだと思いますが、新築当時キッチンの打合せを楽しみに待っていたら「もう発注しました。」と言われてしまいました。そんな苦い思い出を30年の時を経て今回のリフォームで払拭することができました。打合せではこちらの要望だけでなく使い勝手や動線・パントリーの収納などの提案もしていただき満足しています。●洗面室と納戸を入れ替えたことで洗面室空間にゆとりができたことや、ただのタンス置場と化していた収納をライブラリースペースに生まれ変わらせる提案を頂いたこともよかったです。

林 清華
戸建て住宅の全面リフォーム。M様の一番のご要望は、なんといってもキッチンの使い勝手の悪さを改善することでした。収納は多ければいいというものではない、また空間は広ければいいというものではない、ということは当然のことですが、それによって30年ご不便を感じてこられたM様から生の声をお聞きして、プランニングの大切さをあらためて実感させて頂きました。
戸建て住宅の全面リフォーム。M様の一番のご要望は、なんといってもキッチンの使い勝手の悪さを改善することでした。収納は多ければいいというものではない、また空間は広ければいいというものではない、ということは当然のことですが、それによって30年ご不便を感じてこられたM様から生の声をお聞きして、プランニングの大切さをあらためて実感させて頂きました。
広い割には小さな手洗器。お孫さんが来られると周囲の床が水浸しになっていた。

トイレ本体はアラウーノSⅡをご採用。もともと収納スペースだったところを手洗いスペースとして利用。お孫さんたちが利用されても床が水浸しになることはもうありません。下部の配管スペースは収納として開き戸を取付けました。
●キッチンの動線が悪く閉鎖的で暗かった。キッチン横の収納は奥行が深く整理しにくかった。●キッチンの雑然とした様子がリビングから丸見えだった。●洗面室は使い勝手の悪い収納が壁面に造り付けてあり暗かった。●トイレに収納が多すぎて使えていない。●ご主人様の本棚が2階の奥深い場所に造り付けられていた。

●L型キッチンをI型に変更し動線を改善。収納もしやすく明るい。併設したパントリーは便利●3帖の納戸を2帖の洗面室と入れ替え。ゆとりの洗面室で脱衣→洗濯物→入浴の動作が効率的に。●2階のタンス置場と納戸を見直して、ライブラリー空間に。ご主人様のたくさんの本を快適に収納し長居したくなる空間に。
このリフォームで採用したパナソニック商品





