二人でも、大勢で集まっても、団らんを楽しめるLDKに一新。
(有)山敏建築
| 建物種別 | 戸建て |
|---|---|
| 改修規模 | 改装・設備交換 |
| 築年数 | 築40年 |
| 施工期間 | 約45日 |
| 地域 | 愛知県 |
| 家族構成 | 1世帯2人 |
| テーマ | 団らんキッチン、広々、その他 |
-
高級感のあるカウンターや美しいカップボードなど、提案していただいたプランが素敵で!周りをぐるりと通れるところが気に入ってアイランドタイプを選択。明るくすっきりしたLDKになって、ご夫妻揃って満足されています。
-
壁一面にキッチンボードを貼ったので、汚れてもサッと拭けるところが気に入っています。見た目もツヤがあり、スッキリして嬉しいですね、と奥様。北側なので、冬は伊吹おろしで寒い思いをしていましたが、内窓を入れてエアコンも設置したので、これからの冬は暖かく過ごせそうです。
-
小柄な奥様に合わせて、キッチンの高さを85cmに。ショウルームで「冷蔵庫から野菜を出してシンクで洗って、切って、コンロにかけたお鍋に入れる」を実際にシミュレーションしたので、使いやすいサイズになりました。
-
手が届きやすいように、カップボードの奥行は55cmに。冷蔵庫とカップボードは面一にして、電子レンジや炊飯器などの家電製品もすっきり納まります。耐震ロック付きなので、もし地震が起こっても安心して使えるようになりました。
-
LEDの間接照明にして、やさしい光が照らすおしゃれな雰囲気に。食後のリラックスタイムも、ゆったりくつろげそうです。
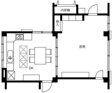
親戚やご友人と集まることが多いS様。LDKを一新して、賑やかに楽しめる空間にしたいと、リフォームされました。回遊できるキッチンを中心に、間仕切りや段差をなくし、広びろ空間に。家事スペースや収納の工夫もプラスして、さまざまな要望が叶ったLDKでの新しい暮らしを楽しみにされています。
で、素敵なLDKになりました。3Dプランをつくってくださり、リフォーム後をイメージできたのもよかったですね。夫婦二人でも、子どもたちが帰省して家族4人でも、ゆったり団らんを楽しめる空間になって、とても満足しています。
四日市工場でキッチンのグラリオカウンターができる様子を見て「これは、いいな」と思い、自信を持ってお奨めできました。ご提案プランをそのまま気に入って受け入れてくださったのが嬉しいですね。ご要望をまとめて記載してくださったり、こちらの時間のことまで気遣ってくださるご夫妻のお人柄に、感謝の気持ちでいっぱいです。
おばあ様とお母様の代から40年受け継がれてきたキッチンは古くなり、使い勝手がわるくなっていました。

高級感のあるカウンターや美しいカップボードなど、提案していただいたプランが素敵で!周りをぐるりと通れるところが気に入ってアイランドタイプを選択。明るくすっきりしたLDKになって、ご夫妻揃って満足されています。

壁一面にキッチンボードを貼ったので、汚れてもサッと拭けるところが気に入っています。見た目もツヤがあり、スッキリして嬉しいですね、と奥様。北側なので、冬は伊吹おろしで寒い思いをしていましたが、内窓を入れてエアコンも設置したので、これからの冬は暖かく過ごせそうです。

小柄な奥様に合わせて、キッチンの高さを85cmに。ショウルームで「冷蔵庫から野菜を出してシンクで洗って、切って、コンロにかけたお鍋に入れる」を実際にシミュレーションしたので、使いやすいサイズになりました。

手が届きやすいように、カップボードの奥行は55cmに。冷蔵庫とカップボードは面一にして、電子レンジや炊飯器などの家電製品もすっきり納まります。耐震ロック付きなので、もし地震が起こっても安心して使えるようになりました。

LEDの間接照明にして、やさしい光が照らすおしゃれな雰囲気に。食後のリラックスタイムも、ゆったりくつろげそうです。






