愛知県 S様邸
二人でも、大勢で集まっても、団らんを楽しめるLDKに一新。
(有)山敏建築
| 建物種別 | 戸建て |
|---|---|
| 改修規模 | 改装・設備交換 |
| 築年数 | 築40年 |
| 施工期間 | 約45日 |
| 地域 | 愛知県 |
| 家族構成 | 1世帯2人 |
| テーマ | 団らんキッチン、広々、その他 |
-
リビングの一角の畳コーナーには、ちょっとした書きものやパソコンができるインテリアカウンターを設置。書きものをしたり、繕いものなど、ちょっとした家事をするのにも便利です。
-
テレビをすっきりと置きたくて、壁面収納「キュビオス」をご採用。ダイニングやリビングで椅子に座っても、畳コーナーで横になっても、テレビを楽しめるようにしました。
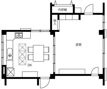
親戚やご友人と集まることが多いS様。LDKを一新して、賑やかに楽しめる空間にしたいと、リフォームされました。回遊できるキッチンを中心に、間仕切りや段差をなくし、広びろ空間に。家事スペースや収納の工夫もプラスして、さまざまな要望が叶ったLDKでの新しい暮らしを楽しみにされています。
子どもたちが家を離れた今のうちに!と思い、リフォームを決断。ショウルームアドバイザーさんが信頼のおける方
で、素敵なLDKになりました。3Dプランをつくってくださり、リフォーム後をイメージできたのもよかったですね。夫婦二人でも、子どもたちが帰省して家族4人でも、ゆったり団らんを楽しめる空間になって、とても満足しています。
で、素敵なLDKになりました。3Dプランをつくってくださり、リフォーム後をイメージできたのもよかったですね。夫婦二人でも、子どもたちが帰省して家族4人でも、ゆったり団らんを楽しめる空間になって、とても満足しています。
有限会社山敏建築 伊藤 辰巳 様
四日市工場でキッチンのグラリオカウンターができる様子を見て「これは、いいな」と思い、自信を持ってお奨めできました。ご提案プランをそのまま気に入って受け入れてくださったのが嬉しいですね。ご要望をまとめて記載してくださったり、こちらの時間のことまで気遣ってくださるご夫妻のお人柄に、感謝の気持ちでいっぱいです。
四日市工場でキッチンのグラリオカウンターができる様子を見て「これは、いいな」と思い、自信を持ってお奨めできました。ご提案プランをそのまま気に入って受け入れてくださったのが嬉しいですね。ご要望をまとめて記載してくださったり、こちらの時間のことまで気遣ってくださるご夫妻のお人柄に、感謝の気持ちでいっぱいです。

リビングの一角の畳コーナーには、ちょっとした書きものやパソコンができるインテリアカウンターを設置。
書きものをしたり、繕いものなど、ちょっとした家事をするのにも便利です。
間仕切りで仕切られたリビング。食器棚が地震で倒れないか心配でした。

テレビをすっきりと置きたくて、壁面収納「キュビオス」をご採用。ダイニングやリビングで椅子に座っても、畳コーナーで横になっても、テレビを楽しめるようにしました。

このリフォームで採用したパナソニック商品





