広島県 K様邸
広々と暮らせて、家族との時間を豊かなものにしたい。
(有)山尾工務店
| 建物種別 | マンション |
|---|---|
| 改修規模 | 全面リフォーム |
| 築年数 | 築27年 |
| 工事面積 | 約14m2 |
| 施工期間 | 約45日 |
| 地域 | 広島県 |
| 家族構成 | 夫婦 |
| テーマ | 団らんキッチン、バリアフリー、自然素材、明るい部屋、広々 |
-
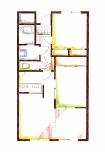
和室を狭くし、その分のびのびとしたリビングにできます。
床は自然塗料で仕上げた松、テレビ台の壁にはアクセントカラーのグレーでコーディネート。テレビを見る楽しさが増えそうです。 -
部屋干しの時に役立つ、機能的な物干しユニットを設置しました。
物干しは結構下まで下がるので、背が低い方でも使いやすい物干しです。
使わないときは天井にしまってスッキリ。
隣接している和室を小さくし、リビング面積を大きくとりました。LDKの空間は統一した内装材にしてスッキリと見せました。家族とのコミュニケーションが取れやすいように、リビングはキッチンから見渡せるよう提案をしました。日中は陽の光が優しく入り、夜は照明でまた違った雰囲気が楽しめそうです。

壁を珊瑚の漆喰にすることを提案してもらい、大変気に入りました。バスルームの浴槽を美泡湯、キッチンは還元水を設置してよかったです。工事期間については短期間で良かったと思います。これからもアフターをよろしくお願いいたします。

森北
マンションリノベーションで無垢材を使うイメージがあまりないと思います。漆喰や無垢の木をふんだんに使ってマンションの既成概念を破り、まるで木に囲まれたログハウスにいるような空間です。思い切って住設機器を最新にされたことで家事の時短が可能になります。心地のよい時間を過ごしていただきたいと思います。時々来られるお孫さんと過ごすのが楽しみですよね!小さな工務店ですが、地域密着のアフターサービスをしておりますのでご安心ください。
マンションリノベーションで無垢材を使うイメージがあまりないと思います。漆喰や無垢の木をふんだんに使ってマンションの既成概念を破り、まるで木に囲まれたログハウスにいるような空間です。思い切って住設機器を最新にされたことで家事の時短が可能になります。心地のよい時間を過ごしていただきたいと思います。時々来られるお孫さんと過ごすのが楽しみですよね!小さな工務店ですが、地域密着のアフターサービスをしておりますのでご安心ください。
広々と暮らしたい。

和室を狭くし、その分のびのびとしたリビングにできます。
床は自然塗料で仕上げた松、テレビ台の壁にはアクセントカラーのグレーでコーディネート。テレビを見る楽しさが増えそうです。

部屋干しの時に役立つ、機能的な物干しユニットを設置しました。
物干しは結構下まで下がるので、背が低い方でも使いやすい物干しです。
使わないときは天井にしまってスッキリ。
調理室で、家族とのコミュニケーションが取りにくい。収納スペースが狭いため、物の整理ができない。

調理室をなくし対面キッチンにして、LDKはお互いが見渡せる場にしました。これで家族の会話がもっと増え、コミュニケーション取れやすい空間に。収納は廊下に収納スペース、和室の小上がりの畳の下、キッチンも収納を重視するなど収納スペース抜群。
このリフォームで採用したパナソニック商品





