千葉県 Y様邸

すみずみまであたたかい
夫婦二人のための住まいにリフォーム。

住マイルホーム株式会社
お店の情報・お問い合わせ 
データ
建物種別 戸建て
改修規模 全面リフォーム
築年数 築50年
施工期間 約120日
地域 千葉県
家族構成 1世帯2人
テーマ 団らんキッチン、明るい部屋、耐震、広々
お近くの「パナソニックの住まいパートナーズ」登録店
リフォームポイント

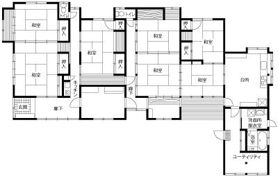
築約50年のお住まいは、土間の台所や田の字和室がある昔ながらの日本家屋。娘さんたちの独立とご主人の定年をきっかけに、大規模リフォームを決意されました。土間の台所は思い切って減築し、耐震性を高めるため、基礎や柱も補強し直しました。さらに、LDKや浴室・洗面脱衣室・トイレに床暖房を採用。寒くて暗かった空間が暖かく快適に生まれ変わりました。娘さんもときどき遊びに来られ、あたたかなリビングでご夫妻とともに過ごされるそうです。

お客様の声
娘から「夫婦ふたりだけの暮らしのために、いい家をつくってね」と背中を押されてリフォームに踏み切りました。あたたかな住まいにしたくて、4か所に床暖房を採用。施工前は「本当に必要なの?」と思いましたが、暮らしはじめたら大正解!若い頃のリフォームとは違う、「おとなのリフォーム」を実現できました。
担当者の声
営業部長 鈴木 美智子 様

Y様ご一家は東日本大震災でかなりの揺れを経験されました。そこで基礎からコンクリートを打ち直し、柱も相当数増やして補強。壁や天井に断熱材をたっぷり入れたため、夏の涼しさ・冬のあたたかさはもちろん、遮音性もよくなったと大変お喜びです。間取りや設備は、ご夫妻の暮らしやすさを最優先に考えました。千葉と東京・汐留のショウルームで、キッチン・浴室から照明・建具まで、すべての設備を決めていただいたのですが、奥様のご決断の早さが印象に残っています。「設備の進化で電気代も思ったほどかからない」「このリフォームに後悔なし!」と、うれしいお言葉もいただきました。
ビフォーアフター
ビフォー

アフター

冷え性の奥様にとって、「あたたかさが違う」酸素美泡湯はなによりの楽しみ。さらに入る前に床をあたためる「スゴぽかフロア」が、寒い季節に大活躍!「ヒートショックが怖いので、最初からお風呂があたたかいと安心感がありますね」とご主人も満足されておられるそう。

ビフォー

アフター

このリフォームで採用したパナソニック商品
施工店情報
見なおし隊
住マイルホーム株式会社

〒292-0056
住所:千葉県木更津市木更津2-2-41 GTビル1階
電話:0438-97-6360 FAX:0438-97-6370

お店の情報・お問い合わせ
住マイルホーム株式会社のリフォーム事例一覧
近くのお店を探す

Panasonicの住まい・くらし SNSアカウント