京都府 T様邸
中古物件を『ゲストハウス』にリフォーム
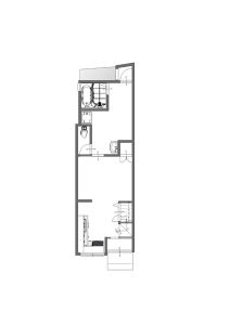
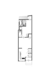
- 物件全体
- リビング・外装・屋根
- 寝室
(株)ハウスウィンドウ
| 建物種別 | 店舗ほか |
|---|---|
| 改修規模 | 全面リフォーム |
| 築年数 | 築50年 |
| 施工期間 | 約35日 |
| 地域 | 京都府 |
| 家族構成 | 夫婦+子供 |
| テーマ | 明るい部屋 |
-
お客さまがお休みになられる寝室は落ち着いた雰囲気に。
-
もう一部屋寝室に。こちらの寝室はベッドを二つ並べてゆったり空間に。
中古物件をゲストハウスにリフォーム。簡易宿泊所(ゲストハウス)として使用する営業物件なので申請ができる設備を整え、オシャレなデザインに。

最初予定していた工事内容に加え変更が多々出ましたが、臨機応変に対応していただきとても助かりました。何度も念密に打合せして頂いたお陰です。ありがとうございました。宿泊者募集のサイトにアップしたらアップした次の日から早速予約が入り大変嬉しかったです。

能勢
変更場所の対応には困った事や苦労も有りましたがお客さまにご満足して頂けたので私としても嬉しく思っております。 傷んでいる箇所の修繕、そして見た目もオシャレにとなると費用がかさんでしまうのでなんどもお客さまとお打ち合わせをしお客さまに満足して頂ける工事内容を決める事ができました。 また、お打ち合わせの回数を重ねるごとにお客さまの人柄などが見えていき工事完了後には何とも言えない高揚感を得る事ができました。
変更場所の対応には困った事や苦労も有りましたがお客さまにご満足して頂けたので私としても嬉しく思っております。 傷んでいる箇所の修繕、そして見た目もオシャレにとなると費用がかさんでしまうのでなんどもお客さまとお打ち合わせをしお客さまに満足して頂ける工事内容を決める事ができました。 また、お打ち合わせの回数を重ねるごとにお客さまの人柄などが見えていき工事完了後には何とも言えない高揚感を得る事ができました。

お客さまがお休みになられる寝室は落ち着いた雰囲気に。

もう一部屋寝室に。こちらの寝室はベッドを二つ並べてゆったり空間に。






