京都府 T様邸
皆が集まる憩いの場
(株)ハウスウィンドウ
| 建物種別 | 店舗ほか |
|---|---|
| 改修規模 | 全面リフォーム |
| 築年数 | 築50年 |
| 施工期間 | 約35日 |
| 地域 | 京都府 |
| 家族構成 | 夫婦+子供 |
| テーマ | 明るい部屋 |
-
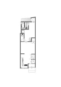
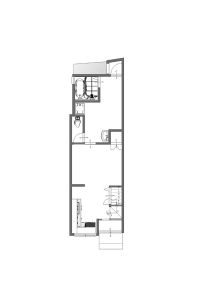
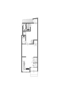
リビングに畳コーナーを設置。
-
塗装し美しく蘇った外観。
外国の方も宿泊されるゲストハウス。リビングの一角には畳スペースを設置。冬には畳スペースにコタツが置けるようにしました。

最初予定していた工事内容に加え変更が多々出ましたが、臨機応変に対応していただきとても助かりました。何度も念密に打合せして頂いたお陰です。ありがとうございました。宿泊者募集のサイトにアップしたらアップした次の日から早速予約が入り大変嬉しかったです。

能勢
変更場所の対応には困った事や苦労も有りましたがお客さまにご満足して頂けたので私としても嬉しく思っております。 傷んでいる箇所の修繕、そして見た目もオシャレにとなると費用がかさんでしまうのでなんどもお客さまとお打ち合わせをしお客さまに満足して頂ける工事内容を決める事ができました。 また、お打ち合わせの回数を重ねるごとにお客さまの人柄などが見えていき工事完了後には何とも言えない高揚感を得る事ができました。
変更場所の対応には困った事や苦労も有りましたがお客さまにご満足して頂けたので私としても嬉しく思っております。 傷んでいる箇所の修繕、そして見た目もオシャレにとなると費用がかさんでしまうのでなんどもお客さまとお打ち合わせをしお客さまに満足して頂ける工事内容を決める事ができました。 また、お打ち合わせの回数を重ねるごとにお客さまの人柄などが見えていき工事完了後には何とも言えない高揚感を得る事ができました。

リビングに畳コーナーを設置。

塗装し美しく蘇った外観。

このリフォームで採用したパナソニック商品





