兵庫県 O様邸
無垢材を使ったカウンターや塗り壁で素材感が楽しめる空間に
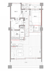
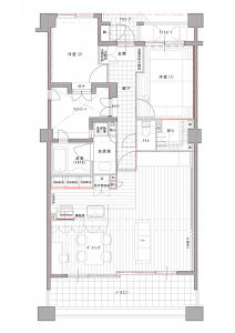
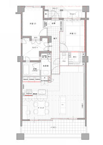
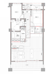
- 物件全体
- 個室・玄関・廊下
株式会社サンリフォーム本社
| 建物種別 | マンション |
|---|---|
| 改修規模 | 改装・設備交換 |
| 築年数 | 築15年 |
| 総工事面積 | 約67m2 |
| 施工期間 | 約40日 |
| 総工事費 | 約518万円 |
| 地域 | 兵庫県 |
| 家族構成 | ご夫婦+お子様3人 |
| テーマ | 自然素材、明るい部屋、その他 |
アメリカ西海岸にあるセレクトショップのような洗練された空間を希望されていたOさん。
無垢材や塗り壁で素材感が楽しめる空間を演出しながら、メンテナンスの便利なフローリング材を選び、コストも抑えられるようにしました。リビングは広く、キッチンは開放的に、お子さんたちの将来の個室も確保。
エントランスの床は古材やテラコッタタイルを、キッチンカウンターも無垢材を使って造作し、自然素材をバランスよく採り入れることで、素材感が楽しめるナチュラルテイストへと生まれ変わりました。


このリフォームで採用したパナソニック商品





