愛知県 K様邸
都心の3階建てを全面リフォーム。
新婚カップルの夢をかなえたハイセンスな新居。
北河建設株式会社
| 建物種別 | 戸建て |
|---|---|
| 改修規模 | 全面リフォーム |
| 築年数 | 築30年 |
| 施工期間 | 約180日 |
| 地域 | 愛知県 |
| 家族構成 | 1世帯2人 |
| テーマ | 団らんキッチン、広々、その他 |
-
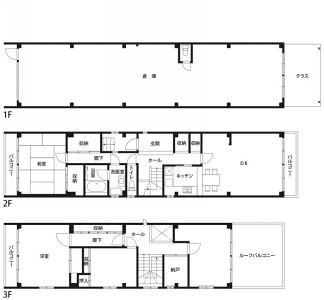
2階の廊下の片側はすべて壁面収納。その収納量は膨大で、季節用品や書籍から身のまわりの細かな品々まで、すべて片づきます。ダウンライトや室内扉の小窓が奥行ある空間のアクセントに。
結婚後の新居に、3階建ての中古住宅をご購入。
水廻り設備から床、照明、扉の一つひとつまでこだわり抜いた素敵な住まいに生まれ変わりました。
難しい要望にも応えていただき、理想の新居ができました。ショウルームでパナソニック製品を見て、「品質に間違いない!」と確信。暮らしはじめてからも、とても気に入っています。近くに住む母もわざわざお風呂に入りに来るんですよ(笑)
代表取締役 北河 治 様
建築とは、その人のライフスタイルを表現するもの。K様の奥様とは子どもの頃から家族ぐるみのつきあいがあり、ライフスタイルもデザインのお好みもよく理解していました。よく知っている人だからこそ、ここまで表現できたのだと思います。
当社は新築物件を多く扱っていますが、リフォームは受け継いだものをうまく活かすことに面白さがあります。今後も住み心地のいい家、住まう人が幸せになれる空間づくりを実現していきたいですね。
建築とは、その人のライフスタイルを表現するもの。K様の奥様とは子どもの頃から家族ぐるみのつきあいがあり、ライフスタイルもデザインのお好みもよく理解していました。よく知っている人だからこそ、ここまで表現できたのだと思います。
当社は新築物件を多く扱っていますが、リフォームは受け継いだものをうまく活かすことに面白さがあります。今後も住み心地のいい家、住まう人が幸せになれる空間づくりを実現していきたいですね。

2階の廊下の片側はすべて壁面収納。その収納量は膨大で、季節用品や書籍から身のまわりの細かな品々まで、すべて片づきます。ダウンライトや室内扉の小窓が奥行ある空間のアクセントに。

このリフォームで採用したパナソニック商品
- 内装ドア リビエ[終了品]





