定年後の夫婦の暮らしを見据えて、
IH&エコキュートにリフォーム。
株式会社テクノブレイン
| 建物種別 | 戸建て |
|---|---|
| 築年数 | 築19年 |
| 総工事面積 | 約62m2 |
| 施工期間 | 約21日 |
| 総工事費 | 約600万円 |
| 地域 | 北海道 |
| 家族構成 | 一世帯2人 |
| テーマ | 団らんキッチン、オール電化 |
-
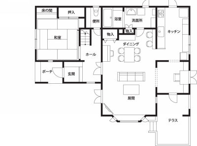
キッチンとダイニングの間の壁を取り払い、対面型のシステムキッチン「リビングステーション」にリフォーム。動線がよくなり、キッチンそのものの面積も拡げたため、明るく動きやすい空間になりました。上品なカラーは奥様のお気に入りです。
-
パンやお菓子を成型するための広い調理台、重量のある粉や調理器具を軽々と仕舞える引き出し収納。高い場所でも取り出しやすい「ソフトダウンウォールユニット」など、使いやすさに奥様も大満足!週に1度はパンを焼いておられます。
-
真冬になると、気温が氷点下15℃まで下がる地域。そのため、エコキュートのタンクは熱損失を防ぐために室内に設置されています。冬でもたっぷりのお湯を使えます。
-
以前は中途半端な広さの小上がりがあり、物置状態になっていたダイニング。小上がりを取り除き、バリアフリーの床にしたことで、以前より広く感じられるように。カップボードもぴったり壁面に収まって、ゆったりとティータイムを楽しまれています。
-
室内の暖房には、輻射熱でお部屋全体をやさしく暖める電気蓄熱暖房機をご採用。夜間に電気代が割安になるオール電化用電灯契約を利用して、深夜の間に蓄熱。日中は、室内に放熱されてるので、光熱費を抑えながら暖かく過ごせます。
-
寒さが厳しい北海道だけに、以前はお風呂を沸かしてもあっという間に冷めていたそう。そこで保温性能の高いシステムバスルーム「ココチーノ」をご採用。酸素を含んだミクロの泡が身体を温める酸素美泡湯を満喫され、「身体がポカポカに温まる」と喜んでおられます。
-
洗面ドレッシング「ウツクシーズ」は、3面鏡の裏側に収納スペースがたっぷり。いちいち蛇口をひねらなくても水が出たり止まったりする自動水栓は、使いやすくて本当に便利。洗面室がスタイリッシュな雰囲気になったのも嬉しいですね、と奥様。
お料理上手な奥様は自宅で本格的に「パンづくりができるキッチン」が長年の夢でした。
一方、ご主人は安全性を考えられ、給湯設備を灯油から電気へとリフォームをご希望に。
水廻り全体を最新設備に入れ替えることで空間そのものが生まれ変わりました。
当社はハーブを使ったエクステリア工事を得意としています。S様もお庭のハーブ園の施工をきっかけにリフォームのお話をいただきました。最新の住宅設備の使いやすさや安心感をとても喜んでくださり、私たちも嬉しく思っています。定年後の暮らしを計画的に考えておられるので、これからもご要望にお応えしていきたいですね。

担当者の声





