大分県 U様
ゆったり過ごせる開放的な住まいに。
エコキュートとIHでエコリフォーム。
(有)丸萬
| 建物種別 | 戸建て |
|---|---|
| 築年数 | 築28年 |
| 総工事面積 | 約36m2 |
| 施工期間 | 約30日 |
| 地域 | 大分県 |
| 家族構成 | 一世帯2人 |
| テーマ | 自然素材、その他 |
-
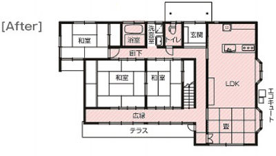
細かく区切られて狭かった居間とキッチンを広びろしたLDKにリフォーム。キッチン「リビングステーション」には、トリプルワイドIHや食器洗い乾燥機を採用して、後片付けも掃除もグンとラクに。奥の庭に面した場所は畳を敷いて、くつろぎスペースを設けました。
-
大容量のカップボードは、食器や調理器具がたっぷり入って、空間すっきり。トリプルワイドIHは作業スペースが広くて使いやすいところがお気に入り。サッと拭くだけでラクにキレイになると、奥様も大満足です。
-
リビングの収納にはショウルームでひと目惚れされた「キュビオス」を設置。壁面いっぱいの大容量収納で、部屋がスッキリ片付くようになったそう。奥様、ご主人、お孫さんそれぞれに専用の収納スペースができました。
-
浴室「ココチーノ」の浴槽は、お孫さんと一緒でもゆったり入れる大きさ。お湯が冷めにくい保温浴槽で、夕食前と寝る前の入浴が楽しみに。浴室の出入り口は段差が少なく、開け閉めしやすい引戸にされました。
-
給湯機は、省エネのことを考えて迷わずエコキュートをご採用。「本当に光熱費が半分になるなんて驚き!」とご夫妻。リフォームしてから日課になった一日2回の入浴で、心おきなくお湯が使えます。
-
和の雰囲気で落ち着いて過ごせるトイレ空間。全自動おそうじトイレ「アラウーノ」は、自動でおそうじしてくれるので、いつもキレイで気持ちがいい、と奥様。手すりを付けて立ち座りもラクになりました。
省エネをはじめ、掃除や片付けがラクな暮らしを願われて、
この先ずっと、のびのび過ごせる空間にリフォーム。
お孫さんと過ごす時間を存分に楽しめる住まいになりました。
夫婦二人暮らしですが、週末に遊びに来る息子の家族とのびのび過ごしたいと思い、リフォームすることに。使いやすく開放的な住まいになって、孫たちが泊まりにくるのを楽しみにしています。
(有)丸萬 代表取締役 秋田 泰義 様
「信頼と安心・人にやさしい住まいづくり」をモットーに、ご要望だった省エネや家事ラクを叶えるプランをご提案しました。自社ショウルームで最新商品をご覧いただいたので、早い段階で具体的なイメージを描きながらリフォームを進められたのだと思います。
「信頼と安心・人にやさしい住まいづくり」をモットーに、ご要望だった省エネや家事ラクを叶えるプランをご提案しました。自社ショウルームで最新商品をご覧いただいたので、早い段階で具体的なイメージを描きながらリフォームを進められたのだと思います。

担当者の声
このリフォームで採用したパナソニック商品
- 腰壁パネル リビエ[終了品]
- キッチン リビングステーション[終了品]
- 壁面収納 キュビオス
- エコキュート
- バスルーム ココチーノ[終了品]
- トイレ アラウーノ
現行のおすすめ商品





