大分県 U様
ゆったり過ごせる開放的な住まいに。
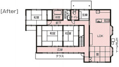
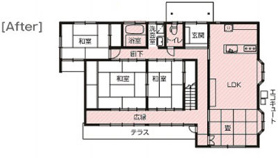
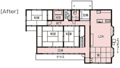
エコキュートとIHでエコリフォーム。
-
リビングの収納にはショウルームでひと目惚れされた「キュビオス」を設置。壁面いっぱいの大容量収納で、部屋がスッキリ片付くようになったそう。奥様、ご主人、お孫さんそれぞれに専用の収納スペースができました。
省エネをはじめ、掃除や片付けがラクな暮らしを願われて、
この先ずっと、のびのび過ごせる空間にリフォーム。
お孫さんと過ごす時間を存分に楽しめる住まいになりました。
夫婦二人暮らしですが、週末に遊びに来る息子の家族とのびのび過ごしたいと思い、リフォームすることに。使いやすく開放的な住まいになって、孫たちが泊まりにくるのを楽しみにしています。
(有)丸萬 代表取締役 秋田 泰義 様
「信頼と安心・人にやさしい住まいづくり」をモットーに、ご要望だった省エネや家事ラクを叶えるプランをご提案しました。自社ショウルームで最新商品をご覧いただいたので、早い段階で具体的なイメージを描きながらリフォームを進められたのだと思います。
「信頼と安心・人にやさしい住まいづくり」をモットーに、ご要望だった省エネや家事ラクを叶えるプランをご提案しました。自社ショウルームで最新商品をご覧いただいたので、早い段階で具体的なイメージを描きながらリフォームを進められたのだと思います。

このリフォームで採用したパナソニック商品






