大分県 U様
ゆったり過ごせる開放的な住まいに。
エコキュートとIHでエコリフォーム。
-
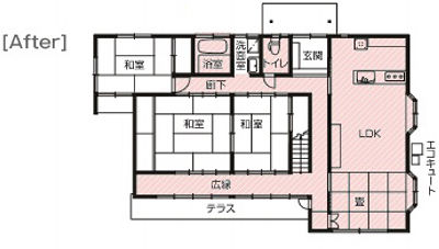
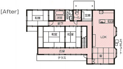
細かく区切られて狭かった居間とキッチンを広びろしたLDKにリフォーム。キッチン「リビングステーション」には、トリプルワイドIHや食器洗い乾燥機を採用して、後片付けも掃除もグンとラクに。奥の庭に面した場所は畳を敷いて、くつろぎスペースを設けました。
-
大容量のカップボードは、食器や調理器具がたっぷり入って、空間すっきり。トリプルワイドIHは作業スペースが広くて使いやすいところがお気に入り。サッと拭くだけでラクにキレイになると、奥様も大満足です。
省エネをはじめ、掃除や片付けがラクな暮らしを願われて、
この先ずっと、のびのび過ごせる空間にリフォーム。
お孫さんと過ごす時間を存分に楽しめる住まいになりました。
夫婦二人暮らしですが、週末に遊びに来る息子の家族とのびのび過ごしたいと思い、リフォームすることに。使いやすく開放的な住まいになって、孫たちが泊まりにくるのを楽しみにしています。
(有)丸萬 代表取締役 秋田 泰義 様
「信頼と安心・人にやさしい住まいづくり」をモットーに、ご要望だった省エネや家事ラクを叶えるプランをご提案しました。自社ショウルームで最新商品をご覧いただいたので、早い段階で具体的なイメージを描きながらリフォームを進められたのだと思います。
「信頼と安心・人にやさしい住まいづくり」をモットーに、ご要望だった省エネや家事ラクを叶えるプランをご提案しました。自社ショウルームで最新商品をご覧いただいたので、早い段階で具体的なイメージを描きながらリフォームを進められたのだと思います。







