兵庫県 衣掛町のマンション改修工事
多目的な空間
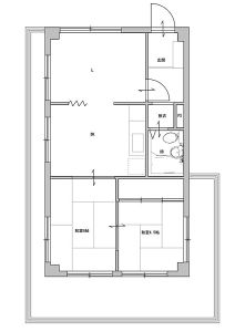
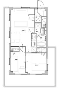
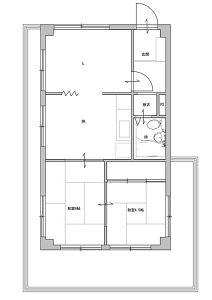
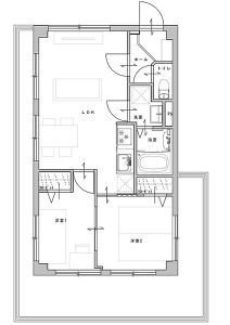
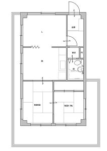
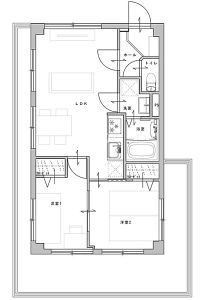
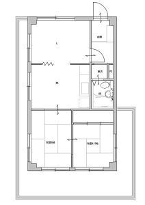
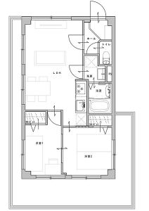
- 物件全体
- リビング・玄関・廊下
- 個室
株式会社アラカーサ
| 建物種別 | マンション |
|---|---|
| 改修規模 | 全面リフォーム |
| 築年数 | 築38年 |
| 工事面積 | 約18m2 |
| 施工期間 | 約60日 |
| 地域 | 兵庫県 |
| テーマ | 明るい部屋 |
-
施工後 洋間へ変更。クローゼットを設け、隣接する洋間とも引き違い戸で仕切りを。
-
施工後 引違い戸開けて一体として使用も可能に
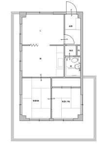
この物件はどんな方が住まれるかがわからなかったため、様々なケースに対応しやすいプランといたしました。既存の2室の和室は6畳間からしか出入が出来なかったため、夫婦と子供の寝室、寝室とテレワークの部屋など想定して、2つの個室として利用出来るように出入口は別に設けました。また、2室広く使えるよう引違い戸で仕切り、子供が小さいうちは1部屋として使用するなど、あらゆるケースを想像してプランニングいたしました。

今回のお客様は不動産業者様所有のマンションで、転売を目的としたリノベーションです。2LDKで素敵な空間にしてください。後はお任せします
施工前はかなり痛んでいた上、細かく余裕の無い設備配置計画だったので、現場の納まり難易度は高かったです
施工前 和室①6畳 収納も無くダイニングと引き違い戸で区切られていました

施工後 洋間へ変更。クローゼットを設け、隣接する洋間とも引き違い戸で仕切りを。
施工前 和室②4.5畳

施工後 引違い戸開けて一体として使用も可能に
水廻りは3点ユニットタイプで、脱衣室は丸見えの上、家事動線がとにかく悪かった。洗濯機は外部設置でした。

水廻りを洗面、トイレ、浴室、それぞれ独立させ、洗濯機置場も設置。狭いスペースを有効に活用しました。
このリフォームで採用したパナソニック商品





