2室を繋げて贅沢に作った奥様の為の寛ぎ空間
サンカラーズリフォーム 御影店
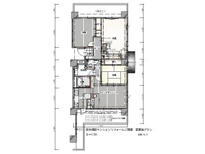
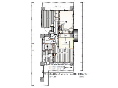
| 建物種別 | マンション |
|---|---|
| 改修規模 | 全面リフォーム |
| 築年数 | 築25年 |
| 工事面積 | 約17m2 |
| 施工期間 | 約45日 |
| 工事費 | 約70万円 |
| 地域 | 兵庫県 |
| 家族構成 | 2人 |
| テーマ | 明るい部屋、広々 |
-
クローゼット内部の様子
-
CH2700と高くパナソニックの折れ戸H2350を採用しても低く感じるような開放的な空間にL字型にクローゼットを新設して2室を繋げた事のメリットを生かせるようにした。
-
グリーンのアクセントクロスとガラス面の大きな引戸を新設した。
-
CH2700と高くパナソニックの折れ戸H2350を採用しても低く感じるような開放的な空間にL字型にクローゼットを新設して2室を繋げた事のメリットを生かせるようにした。
-
2室を繋げたので壁面に多少の段差はあるが広くなって解放感がでた。窓からは自然が広がる景色が見えて良い空間になった。
-
二室を繋げたので、インテリアダクトがい直線には繋がらず少しずれたがこれも照明が灯くと違和感がない。
-
メイクをしたり、書き物をしたりと色々に使えます
2室を一つの部屋にしてベランダからのロケーションがどこにいても眺められるようにした。部屋を広く使えるようにL型にクローゼットを設け横にライティングデスク兼メイクも出来るようなコーナーを提案。奥様のチョイスでグリーンのアクセントクロスとガラス面の大きな引戸にして開放的な部屋にした。


写真は完工直後のもので家具などは入っていないのですが、全て新しく購入されて日常とは違う使い方を楽しまれています。シンプルでデザインも綺麗で掃除がし易い浴室・洗面・トイレ・キッチンと全てパナソニックのものを使って頂き内装の雰囲気と合ったグレード感のあるお住まいになったと思います。購入時にはすべての設備も一新された状態でしたが使い勝手やデザインなど、お客様が満足するには足らないもので一つひとつを自分の暮らしの為に丁寧に選び施工して形になったものは意味合いも深くコロナ禍の工事であり、完成後は旅行もままならないのでこの別宅で楽しんで頂いていることに喜びを感じております。
×印の黄色いテープの壁とクローゼットを撤去して2室を繋げた。

クローゼット内部の様子
当初2部屋とも奥様がお使いになるとのことで一つはクローゼットにもう一つは寝室に使用かなと仰っていたが1室に繋げてクローゼットを付ける事を提案した。

CH2700と高くパナソニックの折れ戸H2350を採用しても低く感じるような開放的な空間にL字型にクローゼットを新設して2室を繋げた事のメリットを生かせるようにした。
片方の部屋のクローゼットも壁も撤去。CHは2700あり高いが照明計画は天井直貼りの為自由度が無くインテリアダクトスタイルを提案。

グリーンのアクセントクロスとガラス面の大きな引戸を新設した。

CH2700と高くパナソニックの折れ戸H2350を採用しても低く感じるような開放的な空間にL字型にクローゼットを新設して2室を繋げた事のメリットを生かせるようにした。

2室を繋げたので壁面に多少の段差はあるが広くなって解放感がでた。窓からは自然が広がる景色が見えて良い空間になった。
別々の洋室があり子供室のような感じで使われていた。全体的に設備の機能が低く、一新したいとお考えだった。

2つの洋室を繋げ、大容量のクローゼットとデスクを設け、快適な奥様の部屋にした。ロケーションも良く、快適。
- 造作部材 ベリティス
- 内装ドア ベリティス
- 照明 スポットライト
- 収納用建具 ベリティス
- 照明器具





