兵庫県 K様邸改修工事
和室の面影なし。将来寝室として使えるモダンな応接室
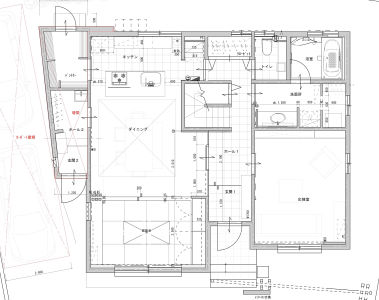
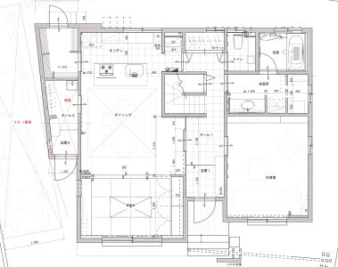
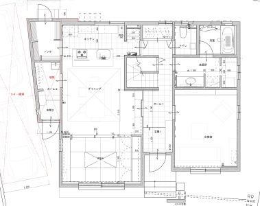
- 物件全体
- ダイニング・リビング
- 玄関・廊下
- 個室
- 洗面
株式会社アラカーサ
| 建物種別 | 戸建て |
|---|---|
| 改修規模 | 増改築 |
| 築年数 | 築28年 |
| 工事面積 | 約17m2 |
| 施工期間 | 約90日 |
| 地域 | 兵庫県 |
| 家族構成 | 二人 |
| テーマ | 団らんキッチン、広々 |
-
将来はベッドルームとしてお使いいただける応接室。押入れ&床の間をタイルで仕上げ、間接照明で雰囲気のある空間に。開口高を上げてベリティスのアウトセット引き戸がすっきり納まるよう工夫しました
-
障子が付いていた窓は、シェードカーテンやバーチカルブラインドが設置できる仕様に変更
使用頻度が低かった和室は応接室に用途変更しました。将来は1階だけで生活が完結するようベッドルームとしてもお使いいただける仕様になっています。押入れ&床の間をなくしてタイルをあしらったテレビボードを造り付け。バーチカルブラインドが設置しやすいよう窓周りを工夫。仰向けになった際に眩しくないよう間接照明にするなど、快適に過ごしていただける空間になっています。

えー!ここはどこ??ここまで変わる?
築26年、汚い、捨てられない、片付かないストレス、気軽に人を呼べない苛立ち、くつろぎのない空間、疲れのとれない日々、遂に別れを告げる決心をした!この決断ができるもう最後の年齢だと思ったからだ。癌も克服できたんだからやれると。そして、見事に生まれ変わった我が家!こんな日を迎えることができるなんて夢にも思ってなかった。玄関を入ると皆が、えー!これ住まい?わぁ!ホテルみたいなおトイレ!洗面所!と感動の嵐。元の面影は無し。アラカーサ様のセンスにお任せし、温かい素晴らしい職人さん達にも恵まれた。ただいま!おかえりなさい!まだ続いてほしかったくらいの楽しい工事期間も問題なくあっという間に過ぎ、遂に完成した!
毎日疲れて帰宅する夫は、車庫から増築した自動で鍵の開く裏口玄関の扉を開け、まずは、あー、いいなぁと入ってくる。食事を終えるやいなやすぐに畳コーナーに移動する。なんとそこには念願の掘り座卓ができたのだ。テレビを見ながら掘り座卓でくつろぐのが夢だった夫は、快適だなぁ、最高だなぁと何回言っただろう!コロナ禍の中、旅行にもいけない日々も旅館のごとく変貌を遂げた我が家で非日常を味わっている。何不自由なく至れり尽くせりの設計に大満足の毎日を過ごしている。あと何年生きられるかわからないけど、死ぬまでこの生まれ変わった我が家で過ごせたらと願っている。新しく和室から生まれ変わった応接室は、将来的には介護ベッドを入れ、介護部屋になる予定だ。そんな準備もでき、心のゆとりも生まれた。ほんとにやってよかったリノベーション!出会えてよかったアラカーサ様!と感謝の日々を過ごしている。
築26年、汚い、捨てられない、片付かないストレス、気軽に人を呼べない苛立ち、くつろぎのない空間、疲れのとれない日々、遂に別れを告げる決心をした!この決断ができるもう最後の年齢だと思ったからだ。癌も克服できたんだからやれると。そして、見事に生まれ変わった我が家!こんな日を迎えることができるなんて夢にも思ってなかった。玄関を入ると皆が、えー!これ住まい?わぁ!ホテルみたいなおトイレ!洗面所!と感動の嵐。元の面影は無し。アラカーサ様のセンスにお任せし、温かい素晴らしい職人さん達にも恵まれた。ただいま!おかえりなさい!まだ続いてほしかったくらいの楽しい工事期間も問題なくあっという間に過ぎ、遂に完成した!
毎日疲れて帰宅する夫は、車庫から増築した自動で鍵の開く裏口玄関の扉を開け、まずは、あー、いいなぁと入ってくる。食事を終えるやいなやすぐに畳コーナーに移動する。なんとそこには念願の掘り座卓ができたのだ。テレビを見ながら掘り座卓でくつろぐのが夢だった夫は、快適だなぁ、最高だなぁと何回言っただろう!コロナ禍の中、旅行にもいけない日々も旅館のごとく変貌を遂げた我が家で非日常を味わっている。何不自由なく至れり尽くせりの設計に大満足の毎日を過ごしている。あと何年生きられるかわからないけど、死ぬまでこの生まれ変わった我が家で過ごせたらと願っている。新しく和室から生まれ変わった応接室は、将来的には介護ベッドを入れ、介護部屋になる予定だ。そんな準備もでき、心のゆとりも生まれた。ほんとにやってよかったリノベーション!出会えてよかったアラカーサ様!と感謝の日々を過ごしている。

着工してから約3ヶ月間、プランニングにデザイン、工法や建材・設備機器の選定、造作家具の製作や増築、外壁の施工、外構工事の計画など、お施主様の理想を実現するために連日深夜まで悩み抜いた久しぶりに難航したリフォームです。通常の木造住宅とは異なり、撤去できる壁や柱が解体前に確定できなかったことがその要因。他にも施工中は色々な問題に直面しましたが、お施主様の寛大なお心と多大なるご尽力により、無事工期通りに完工しました。我々の命を守る大変なお仕事をされているご主人様。工事期間中に何度も緊急のオペに行かれたと翌朝聞きました。ご要望いただいた畳コーナーでゆったりと束の間の休息を楽しんでいただけると嬉しいです。そして奥様。住まわれながらの大規模改修だったことで、寒い時期にバスルームが使えなかったり、お洗濯ができなかったり、さまざまな不便をおかけしました。それでもお会いするたびに優しい言葉をかけてくださり、現場にはたくさんの差し入れまで。いつも元気をいただいていました。少しでも良い空間にしたいと現場でブラッシュアップしてくれた職人さんやメーカーさん、協力業者の方々に対しても感謝の気持ちでいっぱいです。みなさま本当にありがとうございました。
ほぼ使われることのなかった和室

将来はベッドルームとしてお使いいただける応接室。押入れ&床の間をタイルで仕上げ、間接照明で雰囲気のある空間に。開口高を上げてベリティスのアウトセット引き戸がすっきり納まるよう工夫しました

障子が付いていた窓は、シェードカーテンやバーチカルブラインドが設置できる仕様に変更
一般的な間取りではありますが、孤立した暗いキッチンや洗面化粧台の正面に窓がある洗面スペース、タンスを置くと使い辛かった細長い納戸など、気になる点はちらほらとありました。

玄関とLDKを緩やかに繋いで開放的な大空間とし、ぐるりと回遊できる動線を計画しました。サブ玄関を増築し、スペースの半分をパントリーとして活用。水回りは納戸をなくして再構築し、ゆとりのある空間に一新しました。使っていなかった和室は応接室に。将来はベッドルームとして使っていただける空間になっています。
このリフォームで採用したパナソニック商品





