新しい生活のはじまり
コープ住宅(株)
| 建物種別 | 戸建て |
|---|---|
| 改修規模 | 全面リフォーム |
| 築年数 | 築20年 |
| 総工事面積 | 約82m2 |
| 施工期間 | 約50日 |
| 総工事費 | 約1077万円 |
| 地域 | 兵庫県 |
| 家族構成 | ご夫婦2人 と ワンちゃんネコちゃん |
| テーマ | 明るい部屋、オール電化、ペット |
-
キッチンも床も扉も照明もパナソニック。だからこそ出来たまとまりのある空間。
-
補強箇所を検討することで広々とした空間を実現。キッチンから全体が見渡せて会話をしながら料理が楽しく出来そうです。
-
広々としたLDK。
-
使い分けの出来る空間。
-
広く自由に使えるリビング。
-
間仕切ることで多用途に使える。
-
水廻りを集約。廊下が暗くならないよう、トイレ側から光も取り入れました。
-
共働きなので脱衣室にホシ姫サマを設置。雨や時間帯を心配せず洗濯が干せる環境です。
-
時間を気にせず使える2人だけのプライベートバスルーム。
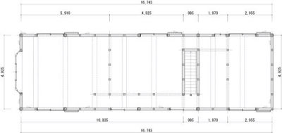
2階部分で水廻りがなかった空間に設備を配置し、新居として生活出来るよう空間造りをさせて頂きました。立派な梁を見せつつも古臭い雰囲気にならないよう天井の高さや照明計画でデザインしました。キッチンから見える開放的な空間とお施主様の生活ニーズに合わせた間仕切り空間・この時代だからこその生活動線に配慮した提案がリフォームのポイントになっています。


たくさんの計画プランの中からお二人の生活スタイルに合う間取りを選んで頂き、コーディネートは『こんな空間にしたい』というご要望がはっきりとお持ちでしたので、一緒に考えさせて頂けて楽しかったです。新しい生活のスタートもお手伝いをさせていただき光栄でした。
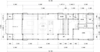
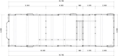
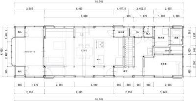
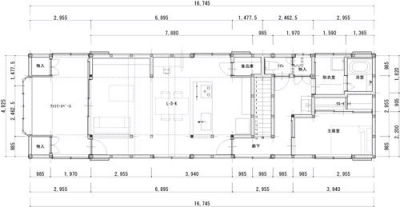
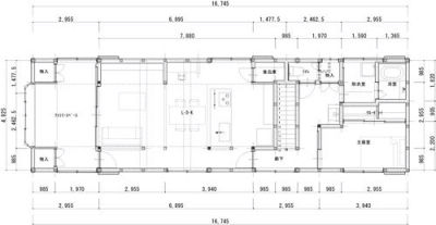
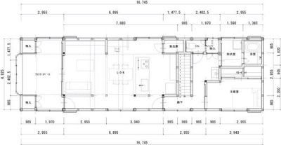
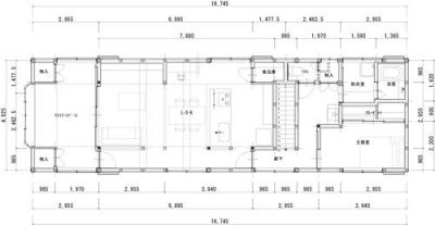
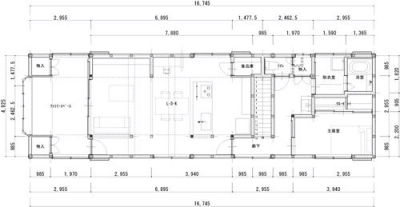
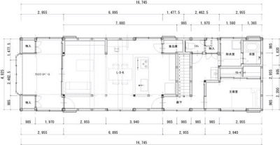
間取りの真ん中に階段があり、ゾーニングしにくい空間でした。

キッチンも床も扉も照明もパナソニック。だからこそ出来たまとまりのある空間。
光を遮る壁。

補強箇所を検討することで広々とした空間を実現。キッチンから全体が見渡せて会話をしながら料理が楽しく出来そうです。
暗い部屋。

広々としたLDK。
部屋を狭くする壁。

使い分けの出来る空間。
構造に配慮されていない間取り。

広く自由に使えるリビング。
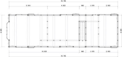
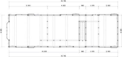
居室としての計画しかしていなかった為、水廻りが全く無い。息子夫婦の新生活の為の空間を作りたい。

水廻り設備を配置し、新居として生活できる空間をつくりました。 LDKを広くとり、将来は子ども部屋も確保できるよう計画した間取りになっています。





