兵庫県 K様邸
ゆったり1616サイズにスゴピカ素材の浴槽・水栓・スミピカフロアで快適!
-
1616のオフローラを新設 広く明るく清潔感のある浴室になり、床段差もなく入りやすい。
-
浴室横に大容量の収納を新設した。
清掃性・デザイン・広さともに拘りが形となった。
住み慣れ場所であり、思い出のある家を子世帯が住み続けてくれるのは有り難い事であり、店舗から住宅に変えるのに違和感が無いような外観デザインになって、イメージが一新され嬉しかった。設備をすべてパナソニック商品にしたのは最初の提案に入っていた事もありましたが、ショウルームで見て掃除し易く、美しいデザインと機能的なところが気に入りました。出来上りもグレードアップされ満足しています。
米谷久美子
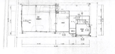
広い店舗を住まいにするという事で最初に5プラン程作り、ゾーニングを中心に絞り込んでいきました。拘りの生活が伺えたので信頼の於けるメーカーの商品を中心にプランニングしました。既存店舗だという事で、土間から束を立て床下地組を作り、既存キッチンと床高を合わせるように施工しました。サッシは準防火地域の為、防火認定仕様にし、防犯の事もあり合わせガラスとしました。採光や通風を考慮してゾーニングをしつつ、他にも使っていない部屋が多くあるのでご家族皆様が快適に住まえるように考えました。
広い店舗を住まいにするという事で最初に5プラン程作り、ゾーニングを中心に絞り込んでいきました。拘りの生活が伺えたので信頼の於けるメーカーの商品を中心にプランニングしました。既存店舗だという事で、土間から束を立て床下地組を作り、既存キッチンと床高を合わせるように施工しました。サッシは準防火地域の為、防火認定仕様にし、防犯の事もあり合わせガラスとしました。採光や通風を考慮してゾーニングをしつつ、他にも使っていない部屋が多くあるのでご家族皆様が快適に住まえるように考えました。
既存店舗奥のバックヤード部分に浴室を新設

1616のオフローラを新設 広く明るく清潔感のある浴室になり、床段差もなく入りやすい。
反対から見たところ

浴室横に大容量の収納を新設した。
長年こちらの地域で店舗をされており、ご主人が他界されたこともあり同居となった。一階スペース以外にも二階もゆったりとした空間になっており、今回のゾーニングも既存キッチンダイニングを広げる形になったが娘様世帯のスペースも十分に確保できた。

ご家族のプライベート空間として店舗部分を改装。応接間や個室は他のスペースにあるので今回同居される娘様世帯のファミリー空間の充実がメインのリフォームとなった。また既存キッチンはお母さまと一緒に使い食事も一緒にされるので、ハイグレードで機能的な仕様とした。
このリフォームで採用したパナソニック商品






