兵庫県 M様邸
空間を照らすあかりを中心に考えた住まい。
(有)インテリア工芸ムラタ
| 建物種別 | マンション |
|---|---|
| 改修規模 | 改装・設備交換 |
| 築年数 | 築29年 |
| 総工事面積 | 約137m2 |
| 施工期間 | 約60日 |
| 地域 | 兵庫県 |
| 家族構成 | 夫婦2人 |
| テーマ | バリアフリー、広々、その他 |
-
全体的に清潔感がある。
-
食洗の位置も使い易いシンク横に変更した。
-
白い扉は明るく広く感じる。
-
背面カウンターも引き出しにして使い勝手が良い。
-
ブラケットとシャンデリアの間接照明が美しい。
-
リビングとは一転してしっくいホワイト色でまとめ、現代フレンチ風に変身。
-
床の間も収納に変え、収納量がアップ。
-
間接照明とシャンデリアに変更し、華やぐ雰囲気に。玄関収納の天板はウォルナットに変更し、床の統一感を演出。
リビングは元々のシックで重厚感あふれる腰壁と建具はそのままに、床フローリングはブラックウォルナットで格調高い仕上げにしました。クラシックなシャンデリアやブラケットを配置することで、光と影の美しさが空間を柔らかくつつみ、落ち着いた雰囲気になりました。難しい変形のレイアウトのキッチンは、Lクラスでお客様のご要望に対応しました。和室は洋室に変更し、他の部屋とは一転して白色の上品なしっくいホワイトでまとめました。リビングとの取合いの建具はガラスを入れることで光を取り入れました。収納もたっぷり取りました。玄関は間接照明とシャンデリアで華やかに演出しました。

元々のシックな腰壁と建具を生かしたリフォームにしたかったので、ウォールナットの床材は雰囲気が壊れることなくよかったと思います。キッチンはLクラスを使用していたのでマンション仕様になったため、少しキャビネットの引き出しの奥行が小さいかなと思いましたが、使い勝手はとても良いです。

村田慶介・村田芳子
戸建てからマンションへのお引越しでお話を頂きました。あかりに注目されていたお施主様。クラシックのシャンデリアやブラケットを、お持ちの家具と位置を照らし合わせ設置寸法を決定し、間接照明やダウンライトと組合せることで、クラシックになりすぎないように雰囲気を作りました。キッチンはL字型の変形でしたが、白色でシンプルにさせたことで広く感じる仕上がりになりました。引き出しの幅やごみ箱ストックの位置など、使い勝手もお施主様のご要望に応えれたと思います。リビング横の洋室は、しっくいホワイト柄を採用し現代フレンチ風に和室から大変身できたと思います。
戸建てからマンションへのお引越しでお話を頂きました。あかりに注目されていたお施主様。クラシックのシャンデリアやブラケットを、お持ちの家具と位置を照らし合わせ設置寸法を決定し、間接照明やダウンライトと組合せることで、クラシックになりすぎないように雰囲気を作りました。キッチンはL字型の変形でしたが、白色でシンプルにさせたことで広く感じる仕上がりになりました。引き出しの幅やごみ箱ストックの位置など、使い勝手もお施主様のご要望に応えれたと思います。リビング横の洋室は、しっくいホワイト柄を採用し現代フレンチ風に和室から大変身できたと思います。
開き扉で使い勝手が悪い。

全体的に清潔感がある。
設備機器が古くなっている。

食洗の位置も使い易いシンク横に変更した。
扉の色が重く、狭く感じる。

白い扉は明るく広く感じる。

背面カウンターも引き出しにして使い勝手が良い。
重く重厚感のある扉を明るくしたい。

ブラケットとシャンデリアの間接照明が美しい。
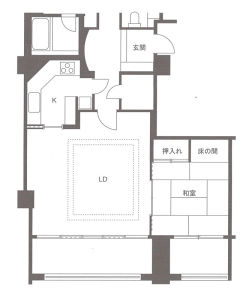
LD横が和室。廊下の床仕上げがカーペット。キッチンが開き扉。

和室を洋室に変更。廊下・LD・洋室の床仕上げを同種のフローリング仕上げに。キッチンと周辺収納も引き出し収納に。





