都心の3階建てを全面リフォーム。
新婚カップルの夢をかなえたハイセンスな新居。
北河建設株式会社
| 建物種別 | 戸建て |
|---|---|
| 改修規模 | 全面リフォーム |
| 築年数 | 築30年 |
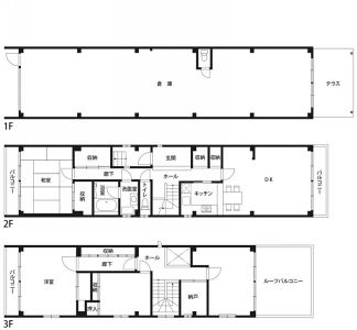
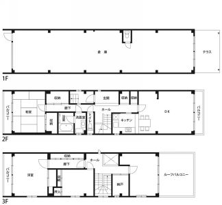
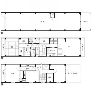
| 総工事面積 | 約244.99m2 |
| 施工期間 | 約180日 |
| 地域 | 愛知県 |
| 家族構成 | 1世帯2人 |
| テーマ | 団らんキッチン、広々、その他 |
-
窓からたっぷりの光が入る2階のリビング。空間の印象を決める床材は、ショウルームで選んだアーキスペックフロアー。訪れるご友人に「スタイリッシュだね」と褒められるそうです。居室から洗面、トイレまで床暖房を入れたので、冬でも家中があたたかく快適に過ごせます。
-
システムキッチン「リビングステーション」の使い勝手のよさに大満足!シンクが大きいから中華鍋を置いて洗えます。コンロの下にビルトインした電子レンジで食材の下ごしらえをして、鍋にさっと移し替えることができ、お料理中の動線がとてもよくなりました。
-
洗面ドレッシング「シーライン」のツインラインLED照明は顔に影ができにくく、メイクが楽しくなります。システムバスルーム「ココチーノS」の浴槽は足をゆったり伸ばせて、腕や頭もラク。なにより驚いたのは、保温性の高さ。追い焚きしなくてもよくなって助かっています。
-
トイレは1階も2階も全自動おそうじトイレ「アラウーノ」。汚れがつきにくいので、お掃除がカンタン。タンクレスのためすっきり見え、機能的で美しい空間に仕上がりました。
-
2階の廊下の片側はすべて壁面収納。その収納量は膨大で、季節用品や書籍から身のまわりの細かな品々まで、すべて片づきます。ダウンライトや室内扉の小窓が奥行ある空間のアクセントに。
-
1階の多目的スペースでは、定期的に奥様のアート鑑賞教室が開かれます。開放感のある折り上げ天井や間接照明、あたたかみのある床材、窓から見える本格的な庭など、来客をもてなすための見事な空間ができあがりました。
結婚後の新居に、3階建ての中古住宅をご購入。
水廻り設備から床、照明、扉の一つひとつまでこだわり抜いた素敵な住まいに生まれ変わりました。
建築とは、その人のライフスタイルを表現するもの。K様の奥様とは子どもの頃から家族ぐるみのつきあいがあり、ライフスタイルもデザインのお好みもよく理解していました。よく知っている人だからこそ、ここまで表現できたのだと思います。
当社は新築物件を多く扱っていますが、リフォームは受け継いだものをうまく活かすことに面白さがあります。今後も住み心地のいい家、住まう人が幸せになれる空間づくりを実現していきたいですね。

リビングにある大きな扉を開けるとモノを出し入れしやすい大容量の収納が出現。事前にどこに何をしまうか、棚割りまで細かく決めておいたので、リビングが散らかることがありません。新しい家具を購入する必要もなく、奥様もとても喜んでおられます。

システムキッチン「リビングステーション」の使い勝手のよさに大満足!シンクが大きいから中華鍋を置いて洗えます。コンロの下にビルトインした電子レンジで食材の下ごしらえをして、鍋にさっと移し替えることができ、お料理中の動線がとてもよくなりました。

洗面ドレッシング「シーライン」のツインラインLED照明は顔に影ができにくく、メイクが楽しくなります。システムバスルーム「ココチーノS」の浴槽は足をゆったり伸ばせて、腕や頭もラク。なにより驚いたのは、保温性の高さ。追い焚きしなくてもよくなって助かっています。

トイレは1階も2階も全自動おそうじトイレ「アラウーノ」。汚れがつきにくいので、お掃除がカンタン。タンクレスのためすっきり見え、機能的で美しい空間に仕上がりました。

2階の廊下の片側はすべて壁面収納。その収納量は膨大で、季節用品や書籍から身のまわりの細かな品々まで、すべて片づきます。ダウンライトや室内扉の小窓が奥行ある空間のアクセントに。

- 内装ドア リビエ[終了品]
- 床暖房 フリーほっと
- キッチン リビングステーションL[終了品]
- ココチーノS[終了品]
- 洗面ドレッシング シーライン
- トイレ アラウーノV[終了品]
- Archi-spec YUKA





