大分県 U様
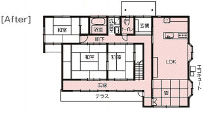
ゆったり過ごせる開放的な住まいに。
エコキュートとIHでエコリフォーム。
-
浴室「ココチーノ」の浴槽は、お孫さんと一緒でもゆったり入れる大きさ。お湯が冷めにくい保温浴槽で、夕食前と寝る前の入浴が楽しみに。浴室の出入り口は段差が少なく、開け閉めしやすい引戸にされました。
-
給湯機は、省エネのことを考えて迷わずエコキュートをご採用。「本当に光熱費が半分になるなんて驚き!」とご夫妻。リフォームしてから日課になった一日2回の入浴で、心おきなくお湯が使えます。
省エネをはじめ、掃除や片付けがラクな暮らしを願われて、
この先ずっと、のびのび過ごせる空間にリフォーム。
お孫さんと過ごす時間を存分に楽しめる住まいになりました。
夫婦二人暮らしですが、週末に遊びに来る息子の家族とのびのび過ごしたいと思い、リフォームすることに。使いやすく開放的な住まいになって、孫たちが泊まりにくるのを楽しみにしています。
(有)丸萬 代表取締役 秋田 泰義 様
「信頼と安心・人にやさしい住まいづくり」をモットーに、ご要望だった省エネや家事ラクを叶えるプランをご提案しました。自社ショウルームで最新商品をご覧いただいたので、早い段階で具体的なイメージを描きながらリフォームを進められたのだと思います。
「信頼と安心・人にやさしい住まいづくり」をモットーに、ご要望だった省エネや家事ラクを叶えるプランをご提案しました。自社ショウルームで最新商品をご覧いただいたので、早い段階で具体的なイメージを描きながらリフォームを進められたのだと思います。

このリフォームで採用したパナソニック商品
- エコキュート
- バスルーム ココチーノ[終了品]






