岡山県 N様
自然光があふれ、冬も暖か。
明るく開放的なLDKのある、エコな住まい。
-
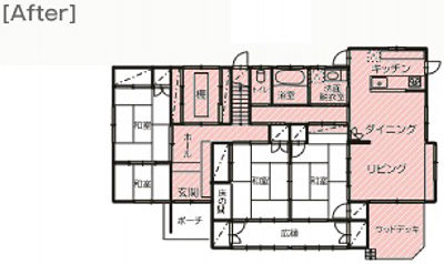
LDKと和室をつなげて、天窓から自然光が降り注ぐ明るいワンルームに。ホワイトの天井・壁をダークブラウンの建具が引き締めて落ち着いた雰囲気の空間になりました。
-
暗くて暑かったキッチンを、視界が広がる対面式に。キッチンからリビングやウッドデッキまで見渡せます。エアコンの風が届くようになって、お料理中の暑さも解消されました。
-
タイル貼りで冬の寒さに震えていた洗面脱衣室。収納たっぷりの洗面ドレッシング「ウツクシーズ」にして、タオルや洗濯物までスッキリしまえるように。断熱性もアップして冬でも暖かくなりました。
-
玄関のつきあたりの部屋は、書庫兼収納庫。膨大な本や趣味の登山道具を整理整頓できるようになりました。廊下のクローゼットは大きな開口の「3枚シンクロ引戸」で、モノの出し入れがラクにできます。
-
ドアや建具を深い味わいのダークブラウン系の色合いで統一した玄関は、和の趣。「帰るとほっとする、ゆったりと落ち着いた雰囲気が気に入っています」と、ご主人もとても満足されています。
-
太陽光発電システムを設置して、夏の電気代が以前の約1/3に! 「IHで光熱費はかなり安くなったのですが、太陽光発電はそれ以上」と、ご夫婦ともびっくりされているそう。
-
断熱性の高いシステムバスルーム「ココチーノ Sクラス」に床暖房もつけて、寒かった浴室が冬でもぽかぽかに。寒い日でもゆっくり入浴できます。サッと汚れが落ちるので、お掃除もラクになりました。
暮らしながら2年間に3回のリフォームを重ねて、夢を実現。
見違えるほど明るくなって、家族や友人が集うにぎやかなLDK0に。
太陽光発電システムとIHで光熱費も大幅にカットされました。
子供たちが巣立ち、ふと気づけばわが家の住みにくさが気になるようになりました。お陰さまで今では居心地がよく、友人や娘が集う、いつもにぎやかな住まいになりました。
(株)中祥建設 代表取締役 阪口 善男 様
最初に外装塗装をリフォームされた時の職人の仕事ぶりを気にいってくださり、その後3回にわたってリフォームの相談をお受けすることができました。当社の強みは、大工や左官工、瓦職人など、多くの職人を自社で抱えていること。お客様のご希望に、きめ細やかにお応えすることができました。
最初に外装塗装をリフォームされた時の職人の仕事ぶりを気にいってくださり、その後3回にわたってリフォームの相談をお受けすることができました。当社の強みは、大工や左官工、瓦職人など、多くの職人を自社で抱えていること。お客様のご希望に、きめ細やかにお応えすることができました。

担当者の声
このリフォームで採用したパナソニック商品
- 内装ドア リビエ[終了品]
- キッチン リビングステーション[終了品]
- 洗面ドレッシング ウツクシーズ
- リビエ クローゼット扉[終了品]
- バスルーム ココチーノ[終了品]
- 腰壁パネル リビエ[終了品]
現行のおすすめ商品






