ここから本文です。


大阪府 Iさま邸

シックでスタイリッシュなトイレ

Panasonic リフォーム 京阪(パナソニック リフォーム株式会社)
このお店の情報・事例を見る 
データ
建物種別 戸建て
改修規模 全面リフォーム
築年数 築16年
施工期間 約45日
地域 大阪府
家族構成 お父さま・お母さま・ご主人・奥さま・長女・次女
テーマ バリアフリー、ペット、吹き抜け
リフォームポイント

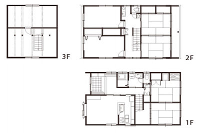
海外勤務されていたご主人様が帰国されるにあたり、木造3階建ての奥様のご実家を二世帯住宅としてリフォーム。
1階は親世帯、2,3階を子世帯のスペースとし、インテリア等好みが違う両世帯の生活空間を分けてリフォームを計画。海外で購入されたお気に入りの家具や鏡の配置も考慮し、家族が集まるLDKをできるだけ広く確保しました。

お客様の声
私たちのこだわりを理解しつつ、予算も踏まえた提案をしていただきました。サンプルだけではイメージしにくい床や柱の色などは、実例を見学させていただけたのがよかったです。入居を急いでいたので工期がタイトでしたが、プランを何度も手直ししてくださり、本当に感謝しています。
担当者の声
海外で過ごされた期間が長く、お手持ちの家具のサイズも大きかった為、家具の配置まで検討しながらプランを検討させていただきました。床や柱の色を提案する際は建築中の他の現場にご案内し、実際の実物をみて決めていただきました。
プランは、LDKをとにかく広く取りたいとのことだったので、勾配屋根を活用し、天井を抜いて広がりを持たせました。ご入居希望日までの期間が短かったこともあり、着工してからも細かな打合せを重ねながら進めました。
ビフォーアフター
ビフォー

アフター

おしゃれな鏡が映えるシックなコーディネートのトイレ。単色ではなく、遊び心のあるブラウン系のストライプ柄クロスをチョイス。

ビフォー

・2階は使っておらず、3階は物置になっていた。
・水まわりなどの設備の老朽化に伴う改修

アフター

・1階は親世帯、2,3階を子世帯のスペースに
・玄関とお風呂のみ共用で3世帯が快適に過ごせる住まいに

このリフォームで採用したパナソニック商品
現行のおすすめ商品
施工店情報
パナソニックリフォーム株式会社
Panasonic リフォーム 京阪(パナソニック リフォーム株式会社)

〒573-1188
住所:大阪府枚方市磯島北町 36-8
電話:0120-75-4146 FAX:

このお店の情報・事例を見る
Panasonic リフォーム 京阪(パナソニック リフォーム株式会社)のリフォーム事例一覧