ページの先頭です。
ここから本文です。
Panasonic リフォーム 京阪(パナソニック リフォーム株式会社)
| 建物種別 | 戸建て |
|---|---|
| 改修規模 | 全面リフォーム |
| 築年数 | 築16年 |
| 施工期間 | 約45日 |
| 地域 | 大阪府 |
| 家族構成 | お父さま・お母さま・ご主人・奥さま・長女・次女 |
| テーマ | バリアフリー、ペット、吹き抜け |
[子世帯]女性が多いことからお化粧なども出来るよう幅が広めの洗面台。「鏡裏にも収納できる三面鏡は便利ですね」と奥さま。階段下のスペースを利用し、ルンバの収納スペースが出来ました。3階への階段は吹抜けで明るく演出しています、
[親世帯]お母さまの好きなピンク色の収納棚を洗濯機置き場上部に取り付け。
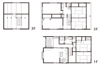
海外勤務されていたご主人様が帰国されるにあたり、木造3階建ての奥様のご実家を二世帯住宅としてリフォーム。
1階は親世帯、2,3階を子世帯のスペースとし、インテリア等好みが違う両世帯の生活空間を分けてリフォームを計画。海外で購入されたお気に入りの家具や鏡の配置も考慮し、家族が集まるLDKをできるだけ広く確保しました。



[子世帯]女性が多いことからお化粧なども出来るよう幅が広めの洗面台。「鏡裏にも収納できる三面鏡は便利ですね」と奥さま。階段下のスペースを利用し、ルンバの収納スペースが出来ました。3階への階段は吹抜けで明るく演出しています、

[親世帯]お母さまの好きなピンク色の収納棚を洗濯機置き場上部に取り付け。
・2階は使っておらず、3階は物置になっていた。
・水まわりなどの設備の老朽化に伴う改修

・1階は親世帯、2,3階を子世帯のスペースに
・玄関とお風呂のみ共用で3世帯が快適に過ごせる住まいに