ページの先頭です。
ここから本文です。
Panasonic リフォーム 京阪(パナソニック リフォーム株式会社)
| 建物種別 | 戸建て |
|---|---|
| 改修規模 | 全面リフォーム |
| 築年数 | 築16年 |
| 施工期間 | 約45日 |
| 地域 | 大阪府 |
| 家族構成 | お父さま・お母さま・ご主人・奥さま・長女・次女 |
| テーマ | バリアフリー、ペット、吹き抜け |
おしゃれな鏡が映えるシックなコーディネートのトイレ。単色ではなく、遊び心のあるブラウン系のストライプ柄クロスをチョイス。
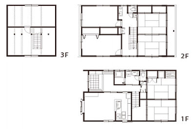
海外勤務されていたご主人様が帰国されるにあたり、木造3階建ての奥様のご実家を二世帯住宅としてリフォーム。
1階は親世帯、2,3階を子世帯のスペースとし、インテリア等好みが違う両世帯の生活空間を分けてリフォームを計画。海外で購入されたお気に入りの家具や鏡の配置も考慮し、家族が集まるLDKをできるだけ広く確保しました。



おしゃれな鏡が映えるシックなコーディネートのトイレ。単色ではなく、遊び心のあるブラウン系のストライプ柄クロスをチョイス。
・2階は使っておらず、3階は物置になっていた。
・水まわりなどの設備の老朽化に伴う改修

・1階は親世帯、2,3階を子世帯のスペースに
・玄関とお風呂のみ共用で3世帯が快適に過ごせる住まいに