ページの先頭です。
ここから本文です。
Panasonic リフォーム 京阪(パナソニック リフォーム株式会社)
| 建物種別 | 戸建て |
|---|---|
| 改修規模 | 全面リフォーム |
| 築年数 | 築16年 |
| 施工期間 | 約45日 |
| 地域 | 大阪府 |
| 家族構成 | お父さま・お母さま・ご主人・奥さま・長女・次女 |
| テーマ | バリアフリー、ペット、吹き抜け |
[子世帯]3階Before
[子世帯]海の中のようなマリンブルーのクロスで個性的に。好きなカラーのクロスを用いることで、同じような間取りでも全く異なる空間になりました。
物置にしていた3階は、ご姉妹それぞれの個室に。勾配天井の空間をお好みのカラーでコーディネートされました。


[子世帯]収納をしっかり確保し、それぞれの好きなクロスを貼ってイメージチェンジ。こちらは紫のクロスをアクセントに、収納扉はグレーとシックで落ち着いた雰囲気に。

[子世帯]3階Before

[子世帯]海の中のようなマリンブルーのクロスで個性的に。好きなカラーのクロスを用いることで、同じような間取りでも全く異なる空間になりました。
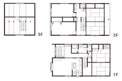
・2階は使っておらず、3階は物置になっていた。
・水まわりなどの設備の老朽化に伴う改修

・1階は親世帯、2,3階を子世帯のスペースに
・玄関とお風呂のみ共用で3世帯が快適に過ごせる住まいに