兵庫県 F様邸

L型の洗面脱衣室がウォークインクローゼットへの動線も良く意外と使いやすい!

サンカラーズリフォーム ステップガーデン
お店の情報・お問い合わせ 
データ
建物種別 戸建て
改修規模 全面リフォーム
築年数 築26年
工事面積 約6m2
施工期間 約105日
地域 兵庫県
家族構成 お義母様 奥様 息子様 娘様
テーマ 団らんキッチン、二世帯、バリアフリー、明るい部屋、ペット、広々、その他
お近くの「パナソニックの住まいパートナーズ」登録店
リフォームポイント

浴室を広くした分洗面脱衣室がコンパクトになったが、元の押入れと和室の一部を取りこんでL字型の空間にして洗濯機や洗面化粧台を配置して、ゆったりとした洗面脱衣室にした。

お客様の声
最初和室2間を無くすとLDKを気持ちよく使えるのは分かっていたのですが、不安もありどうしようかなと思っていた時に、図面とパースで様変わりした家のイメージを見せて頂き、こういう風に使えたらいいなぁという楽しみな気持ちに変わりどんどん話が進んでいきました。8帖の和室も大工さんの腕で、立派な床の間や仏間を再現して頂け良かったです。義母や息子・娘・私の部屋も快適になり収納も充実しました。広さはあったのですが食後寛ぐのは4.5帖の北側の和室だったのが今は広いリビングに皆集まっています。
担当者の声
米谷久美子

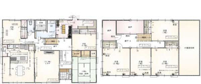
1階の大きな間仕切り移動がポイントで、元の和室2間続きと広縁をLDKにして浴室・洗面を広くとり、ウォークインクローゼットを新設した。勝手口から通じる部分に外で使う用具等を収納できるように物入を作り大容量のクローゼットのある奥様の寝室も新たに作った。真壁の和風建築だったので床天井も解体し、壁も大壁に作り替えた。玄関とホールは既存格天井の趣を残し左官や床材・玄関収納・間接照明で和の雰囲気を残した。2階は和室を洋室に変え内装建具も一新させ各個室を充実させた。
ビフォーアフター
ビフォー

家のボリュームのわりにコンパクトな洗面化粧台。収納もなくお困りだった。

アフター

W900にW300の収納を新設。ウォークインクローゼットへ通じる扉もあり使いやすいゾーニング。

ビフォー

この地袋と天袋の部分も洗面脱衣室に取りこんで広くした。

アフター

廊下側からも入れるようにして脱衣・洗濯・洗面と機能的な空間にした。
L型に作っておりウォークインクローゼットにも繋がるので使いやすい。

ビフォー

LDKが一番快適な場所にでき、各人の部屋が充実し、水回りが機能的で美しくなってとても快適です。1階のウォークインクローゼットや勝手口から入る外部専用の物入等も便利です。

アフター

2間続きの本格的和室と広縁を家族の集う広いLDKにして食事を作る・食べる・TVを見る・寛ぐ・洗濯物を干す ワンちゃんと遊ぶ・お客様を招く等家族みんなで最高の場所を最幸に使って頂けるようにしました。仏間や床の間・違い棚といった本格的な設えは8帖の和室に新設して風情を残しました。

このリフォームで採用したパナソニック商品
施工店情報
見なおし隊
サンカラーズリフォーム ステップガーデン

〒651-1302
住所:兵庫県神戸市北区藤原台中町1-4-1 ステップガーデン藤原台A棟1F
電話:078-984-5131 FAX:078-984-5132

お店の情報・お問い合わせ
サンカラーズリフォーム ステップガーデンのリフォーム事例一覧
近くのお店を探す

Panasonicの住まい・くらし SNSアカウント