家族が心地よく生活できる空間づくり
LDKや水廻りを広くしてリゾートホテルのようなワンランク上の日常を手に入れる
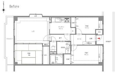
- 物件全体
- ダイニング・リビング
- キッチン
- 洗面
- 浴室
- 玄関・廊下
株式会社シンエイ・シンエイリフォーム
| 建物種別 | マンション |
|---|---|
| 改修規模 | 全面リフォーム |
| 築年数 | 築24年 |
| 総工事面積 | 約66m2 |
| 施工期間 | 約32日 |
| 総工事費 | 約896万円 |
| 地域 | 兵庫県 |
| 家族構成 | 夫婦+子ども1人 |
| テーマ | 団らんキッチン、明るい部屋、広々、その他 |
-
間仕切りを取り払いLDに取り込むことで広々LDが実現。
アクセント壁紙の優しいブラックに、しっくいホワイト柄の建具が映えてスタイリッシュな空間に。 -
壁を取り払ったことで、3つの窓からたくさんの光を取り込むことができ、明るい空間になりました。
-
リビングの一角に造るニッチは家の中心的役割を果たします。家族の大切な品物を収める収納スペースや、素敵な飾り棚として利用することもできます。
-
リビング収納・・・それがあればすっきりと片付き、居心地のいいリビング空間が実現します。
-
和室の一部が収納&ニッチに。
-
キッチンは、スタイリッシュなヴィンテージメタル柄を採用されました。閉塞感を無くすために吊戸やカップボードの上部はアースホワイト柄を採用。明るく広々としたキッチンに生まれ変わりました。
-
LDKからの主出入口にしぼり、廊下への扉を撤去。それによりカップボードは大きいサイズを計画できました。
-
2400から600mm拡張し、3000mmのシステムキッチンに。毎日使うところだから、使いやすさと機能を重視した充実キッチンが完成!
-
浴室の移動により広々洗面室が実現!家族が混みあう時間もストレスなく利用できます。
-
広くなった洗面室にはカウンタータイプの洗面化粧台を設置。お手持ちの椅子に座って、快適にメイクやスキンケアを楽しむことができます。まるでリゾートにいるかのような贅沢な空間です。
-
トイレとの間仕切り壁にアール壁を採用しました。またパイプスペース(PS)の壁の存在感を差し色使いで緩和しました。リゾートホテルのような水廻り空間が実現しました!
-
トイレの位置は変わらず、洗面室との間仕切り壁をアールにすることで、ワンランク上の空間になりました!
-
フラットライン照明を気に入って採用されたユニットバス。壁は4面ともドラマホワイトで洗練された雰囲気に。
-
ホールに出っ張っている壁にあえてアクセントカラーを採用。ベースカラー部分のシンプルさが際立ち空間を広くみせてくれます。LDKと同色のアクセントカラーで統一感を持たせています。
-
コの字タイプの玄関収納はカウンター部分をホール側に計画することで開放的な空間に。飾り棚の役割だけでなく台や手すりとして実用的にも使いやすくなります。フロートタイプの浮遊感で、空間がさらに軽やかに。
・家族皆が日常使う場所を広くしたいと考えておられたお施主様。個室を充実させるより、毎日使うキッチン・洗面室・浴室・トイレを快適な空間にしたい!そこで、使用頻度が少ない和室を部分利用。1116サイズの浴室は1418サイズの広々浴室を実現しました。それにより洗面室は家族で混みあうことのない広さを確保でき、隣接するトイレとの間仕切りをアール壁にすることで、より広さを感じられる快適な空間になりました。
・和室の残りの空間はリビングに取り込むことで、一部をリビング収納として利用しすっきりと生活できる空間になりました。

・間取りや内装の相談にのってもらったことでありきたりにならなかった。
・全体的な統一感が取れていることがよかった。
・キッチン・洗面室・浴室・トイレは家族が毎日使うところ。広くなって気分がよい。
・洗面室とトイレのアール壁の提案が気に入っている。

家族皆が日常使う場所を広くしたいと考えておられたお施主様。キッチン・洗面室・浴室・トイレは家族が毎日使う場所ですので重点的に取り組みました。デメリットが生じる可能性もよく理解され、どこを犠牲にするかを慎重に考えられました。また、全体のデザインについてはリゾートホテルのような統一感を重視され、提案ごとにご家族で吟味していただきました。おかげさまで素敵な空間が完成しました。
LDに隣接する和室。仕切られた空間のため使用頻度も少なかった。

間仕切りを取り払いLDに取り込むことで広々LDが実現。
アクセント壁紙の優しいブラックに、しっくいホワイト柄の建具が映えてスタイリッシュな空間に。

壁を取り払ったことで、3つの窓からたくさんの光を取り込むことができ、明るい空間になりました。

リビングの一角に造るニッチは家の中心的役割を果たします。家族の大切な品物を収める収納スペースや、素敵な飾り棚として利用することもできます。

リビング収納・・・それがあればすっきりと片付き、居心地のいいリビング空間が実現します。

和室の一部が収納&ニッチに。
・部屋が分割されていて、LDKが狭い。
・浴室が狭い。

・和室の一部を利用してせまかった浴室を1116サイズ→1418サイズに。
・残りの和室をLDKに取り込むことにより、
3つの窓からの採光が入り明るい空間に。
・リビング収納やニッチ収納を作ることで、
家族のモノで雑然としがちなLDKもすっきり。





