兵庫県 S様邸
ご主人が戻られるときに使う部屋
サンカラーズリフォーム 御影店
| 建物種別 | マンション |
|---|---|
| 改修規模 | 全面リフォーム |
| 築年数 | 築25年 |
| 施工期間 | 約45日 |
| 工事費 | 約8万円 |
| 地域 | 兵庫県 |
| 家族構成 | 2人 |
| テーマ | 明るい部屋、広々 |
-
ブラック基調の石目のクロスを貼ってアクセントにした。
照明とクロス以外は既存のまま。アクセントクロスをブラックの石目にして協調した。

寝室も広くなりL型に作って頂いたクローゼットも天井までの高さがありたっぷり収納出来るので便利です。キッチンは3パターンの提案がありこのスタイルを希望しました。ちょっとした開口部の作り方でこんなにキッチンとダイニングに繋がりがでたので驚きです。カップボードの方を向くとリビングの窓から遠くの山が見えて気持ちがいいです。和室の建具も昼と夜表情が違って面白いです。お風呂は掃除がし易くて照明も色や明るさを変えられて楽しいです。スポーツジムでおフロに入る事が多かったのですが家フロも楽しみの一つになりました。キッチンはとても使いやすいので普段は自分の食事だけですが大勢集まるときはこちらのキッチンを使いたいです。

米谷久美子
写真は完工直後のもので家具などは入っていないのですが、全て新しく購入されて日常とは違う使い方を楽しまれています。シンプルでデザインも綺麗で掃除がし易い浴室・洗面・トイレ・キッチンと全てパナソニックのものを使って頂き内装の雰囲気と合ったグレード感のあるお住まいになったと思います。購入時にはすべての設備も一新された状態でしたが使い勝手やデザインなど、お客様が満足するには足らないもので一つひとつを自分の暮らしの為に丁寧に選び施工して形になったものは意味合いも深くコロナ禍の工事であり、完成後は旅行もままならないのでこの別宅で楽しんで頂いていることに喜びを感じております。
写真は完工直後のもので家具などは入っていないのですが、全て新しく購入されて日常とは違う使い方を楽しまれています。シンプルでデザインも綺麗で掃除がし易い浴室・洗面・トイレ・キッチンと全てパナソニックのものを使って頂き内装の雰囲気と合ったグレード感のあるお住まいになったと思います。購入時にはすべての設備も一新された状態でしたが使い勝手やデザインなど、お客様が満足するには足らないもので一つひとつを自分の暮らしの為に丁寧に選び施工して形になったものは意味合いも深くコロナ禍の工事であり、完成後は旅行もままならないのでこの別宅で楽しんで頂いていることに喜びを感じております。
ご主人が使われる予定の部屋。何かアクセントになるクロスを貼りたいとのご希望だった。

ブラック基調の石目のクロスを貼ってアクセントにした。
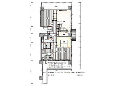
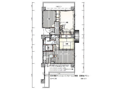
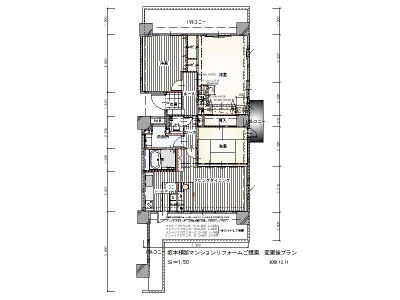
別々の洋室があり子供室のような感じで使われていた。全体的に設備の機能が低く、一新したいとお考えだった。

2つの洋室を繋げ、大容量のクローゼットとデスクを設け、快適な奥様の部屋にした。ロケーションも良く、快適。
このリフォームで採用したパナソニック商品





