オープン過ぎないキッチンとの繋がり方として対面キッチンにはない程よい形を実現。
サンカラーズリフォーム 御影店
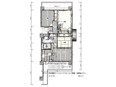
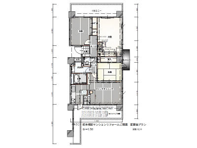
| 建物種別 | マンション |
|---|---|
| 改修規模 | 全面リフォーム |
| 築年数 | 築25年 |
| 工事面積 | 約15m2 |
| 施工期間 | 約45日 |
| 工事費 | 約15万円 |
| 地域 | 兵庫県 |
| 家族構成 | 2人 |
| テーマ | 明るい部屋、広々 |
-
カウンター下にダイニング側からも使えるカップボードを設置。W1350の大きさでカウンターを伸ばして軽食を取ったりちょっと書き物をしたりするのに便利。
-
キッチン側のカップボードとダイニング側のカップボードをカウンターをジョイントして設置し終わったところ。奥行が1050程ある大きなカウンターが出来キッチンとダイニング側が繋がるような形で仕上がった。
-
夜間のダイニングの様子
-
ペンダント照明と和室からの光が見えるリビングダイニング
冷蔵庫設置壁の位置は端にしたかったがベランダへの勝手口の方にすると最近の大型冷蔵庫の奥行が650位必要なのに対して600位しかなく勝手口の開閉に支障があるので敢えて真ん中に持ってきたがキッチンが丸見えになることもなく勝手口からの光もカウンター周辺に届く形になった。天井が直貼り仕上げなので配線を動かす自由度は無かったがインテリアダクトを設置してペンダントライトやスポット照明でアレンジが出来るようにした。


写真は完工直後のもので家具などは入っていないのですが、全て新しく購入されて日常とは違う使い方を楽しまれています。シンプルでデザインも綺麗で掃除がし易い浴室・洗面・トイレ・キッチンと全てパナソニックのものを使って頂き内装の雰囲気と合ったグレード感のあるお住まいになったと思います。購入時にはすべての設備も一新された状態でしたが使い勝手やデザインなど、お客様が満足するには足らないもので一つひとつを自分の暮らしの為に丁寧に選び施工して形になったものは意味合いも深くコロナ禍の工事であり、完成後は旅行もままならないのでこの別宅で楽しんで頂いていることに喜びを感じております。
リビングダイニングとは分断された独立型のキッチンだった

カウンター下にダイニング側からも使えるカップボードを設置。W1350の大きさでカウンターを伸ばして軽食を取ったりちょっと書き物をしたりするのに便利。
キッチンとダイニング側の壁を一部撤去した施工中写真。残している壁に冷蔵庫を設置する。

キッチン側のカップボードとダイニング側のカップボードをカウンターをジョイントして設置し終わったところ。奥行が1050程ある大きなカウンターが出来キッチンとダイニング側が繋がるような形で仕上がった。

夜間のダイニングの様子

ペンダント照明と和室からの光が見えるリビングダイニング
別々の洋室があり子供室のような感じで使われていた。全体的に設備の機能が低く、一新したいとお考えだった。

2つの洋室を繋げ、大容量のクローゼットとデスクを設け、快適な奥様の部屋にした。ロケーションも良く、快適。





