悠・楽・穏・快 ~ワンルーム仕様のおもてなし空間~
- 物件全体
- キッチン・ダイニング・リビング・寝室
- 洗面
サンカラーズリフォーム 西神パルティ
| 建物種別 | マンション |
|---|---|
| 改修規模 | 改装・設備交換 |
| 築年数 | 築30年 |
| 総工事面積 | 約60m2 |
| 施工期間 | 約25日 |
| 総工事費 | 約705万円 |
| 地域 | 兵庫県 |
| 家族構成 | 1人 |
| テーマ | 団らんキッチン、ホームシアター、明るい部屋、広々 |
-
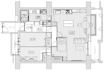
間仕切り壁を撤去して、開放的な空間に。キッチン・カップボード・アイランドカウンターを同じ色柄にしてしっかり収納量を確保することで、スッキリ統一感のあるおしゃれなLDKになりました。
-
和室を取り込みリビングとなった場所からもゆったり感じられるLDKに。来客時にはベッド横のロールスクリーンを下ろして、ベッド側の空間を隠せるようにしました。
-
キッチン室や和室の間仕切り壁をとることで、広々としたゆとりあるLDKに。ダイニングテーブルからスッキリ見えるよう、冷蔵庫横やベッド廻りの必要な壁は残しました。
-
納戸と化していた和室を取り込み、広々としたLDKへ。ダイニングからでも見応え充分な大画面壁掛けTVが映える空間に。ベッド側には普段使いのクローゼットと、お仏壇スペースを確保。
-
壁一面にスッキリ納まったキッチンとカップボード。キッチン前にはインテリアカウンターを付けて、おしゃれな調味料置きに。ご友人を招いて、将来的にはアイランドカウンターでカフェバーのようなことができたら、と奥様。
-
間口1650の洗面化粧台とサークルミラーが、ホテルライクな雰囲気を演出。引出しキャビネットでしっかり収納を確保したので、トール収納をなくしても、物が溢れずスッキリ納まりました。
-
洗濯機上のフレームシェルフと、同じ棚板で作ったアイアンアングル固定棚とブラケット照明が、ホワイトで統一した洗面台や洗濯機の中でアクセントになり、おしゃれな洗面室になりました。
-
よく使用するものや仮置き棚として、洗濯機上にフレームシェルフを採用。洗面台や洗濯機の上に物を置いて乱雑になるのを防ぐ効果も。
-
洗面室からキッチンへ行き来できる元の動線は活かしつつ、洗面室とユーティリティ―の間仕切りを取って、スッキリ広々とした洗面室に。
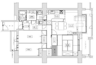
お子様が独立されたのを機に、奥様が楽しく過ごしていただける空間をご提案させていただきました。マンションの配管上、対面キッチンにはできませんでしたが、おもてなし好きの奥様のためにアイランドカウンターを設け、ご友人を招いて楽しく集っていただけるプランをご提案しました。和室を取り込み、広々としたLDKへ。LDKにベッドを配置し、普段はゆったり寛いでいただけるワンルーム仕様に。来客時には、ベッド際に付けたロールスクリーンを下ろして、ベッド側の空間を隠せるようにしました。個室の1室をWICにして、LDKの物をスッキリさせ、ぐるっとどこからでもアクセスできる動線を心がけました。洗面室もユーティリティとの間仕切りを取り、広々としたホテルライクな仕様に。


ゆったりと寛げ、また沢山のご友人を招いて楽しんでいただける、広々としたLDKと洗面室が出来上がりました!就寝時だけ個室に籠るより、LDKにベッドスペースを設けたワンルームスタイルの方が、普段居心地の良い時間を過ごしていただけるのではないかと思い、この間取りプランをご提案しました。おもてなし好きな奥様なので、来客時にはベッド側の空間を隠せるよう、間仕切りとしてロールスクリーンもご提案。個室の1室をWICにしてLDKと繋げることで、寛ぐスペースと収納スペースを分け、ぐるっとどこからでもアクセスしやすい動線を心がけました。照明や造作棚・アングルやミラーなど、随所に奥様のセンスが活かされた、とても素敵なLDK・洗面室になりました!
キッチン室は、壁で囲われ孤立し、閉鎖的な空間となっていました。

間仕切り壁を撤去して、開放的な空間に。キッチン・カップボード・アイランドカウンターを同じ色柄にしてしっかり収納量を確保することで、スッキリ統一感のあるおしゃれなLDKになりました。
リビングのスペースにゆとりがなく、家具やピアノなどが、所狭しと置かれている状態でした。

和室を取り込みリビングとなった場所からもゆったり感じられるLDKに。来客時にはベッド横のロールスクリーンを下ろして、ベッド側の空間を隠せるようにしました。
お子様が独立された後では、間仕切り壁の多い間取りとなっており、使用されないお部屋が出てきてしまっていました。

キッチン室や和室の間仕切り壁をとることで、広々としたゆとりあるLDKに。ダイニングテーブルからスッキリ見えるよう、冷蔵庫横やベッド廻りの必要な壁は残しました。
和室はタンスや物置き場の納戸と化しており、8畳のスペースがうまく活かされていない状態でした。

納戸と化していた和室を取り込み、広々としたLDKへ。ダイニングからでも見応え充分な大画面壁掛けTVが映える空間に。ベッド側には普段使いのクローゼットと、お仏壇スペースを確保。
キッチン室は壁で囲われ独立しており、ダイニング・リビングから見えない分、物で溢れていました。設備も古くなっており、開き扉で物が取り出しにくいキッチンでした。

壁一面にスッキリ納まったキッチンとカップボード。キッチン前にはインテリアカウンターを付けて、おしゃれな調味料置きに。ご友人を招いて、将来的にはアイランドカウンターでカフェバーのようなことができたら、と奥様。
3人のお子様が独立されたのでお部屋の有効活用ができておらず、間仕切りの多い間取りとなっていました。8畳もある和室は納戸と化しほとんど使用されておらず、キッチンは壁に囲われ暗く、お料理中は孤立している状態でした。キッチンや洗面台も古くなっており、物で溢れていました。(浴室・トイレ・個室は、以前施工済み)

LDK・和室・洗面室・ユーティリティの余分な壁を取り払い、ゆったり広々寛いでいただける空間をご提案しました。和室をLDKに取り込み、リビングの一画にベッドスペースを設け、普段はワンルーム仕様に。ベッド側から個室のWICや廊下に動線を繋げ、ぐるっとどこからでもアクセスできる動線プランを心がけました。





