家族が集う場所であり、親しい友人も招くので美しく・快適に機能的にしたい!を形に。
-
店舗との通路部分もダイニングキッチンエリアに取り込んで広いスペースを確保し、キッチンを対面に配置して使いやすくした。Lクラスキッチンはショールームをご覧になりラクシーナからグレードアップした。
-
家具の雰囲気を壊さないような扉材を選択され奥行の深いカップボードをベースにしてアイアンシェルフで装飾と実用性を得られるようにした。
-
カップボード背面はクロスの色も少し明るいものにしてダウンシーリング照明を新設した。ご家族全員が明るい照明を希望されており、配灯計画も明るめを意識した。
-
キッチンの奥の壁にパントリーを新設。大容量で大変便利に使われている。
-
クロスもブルーの天井にイエローの柄の壁クロスを採用し暗くなりがちな空間を楽しく演出。既存カップボードもこちらに納まった。
以前よりもスペースを広く取れた分、対面キッチンにしてパントリ―も新設。キッチンはLクラスを気にいられ、機能・デザイン共に充実した。トリプルワイドガスコンロ・ほっとクリーンフード・システムラック等、パナソニックならではの商材を取り入れシックな雰囲気のキッチンに最新の設備を採用した。
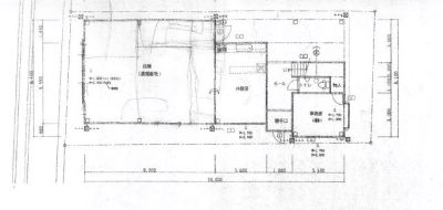
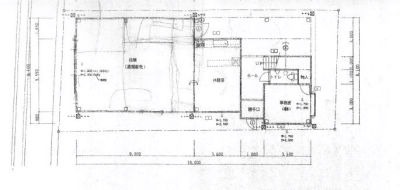
広い店舗を住まいにするという事で最初に5プラン程作り、ゾーニングを中心に絞り込んでいきました。拘りの生活が伺えたので信頼の於けるメーカーの商品を中心にプランニングしました。既存店舗だという事で、土間から束を立て床下地組を作り、既存キッチンと床高を合わせるように施工しました。サッシは準防火地域の為、防火認定仕様にし、防犯の事もあり合わせガラスとしました。採光や通風を考慮してゾーニングをしつつ、他にも使っていない部屋が多くあるのでご家族皆様が快適に住まえるように考えました。
広いキッチンだったが壁に向かって設置されているのと作業スペースにオーブンレンジを設置しているので使いにくい状況だった。鍋のかかっている壁面にドアを設けパントリーを新設。

店舗との通路部分もダイニングキッチンエリアに取り込んで広いスペースを確保し、キッチンを対面に配置して使いやすくした。Lクラスキッチンはショールームをご覧になりラクシーナからグレードアップした。
家電置き場がないのであちこちに分散して置くような形になっていた。

家具の雰囲気を壊さないような扉材を選択され奥行の深いカップボードをベースにしてアイアンシェルフで装飾と実用性を得られるようにした。
冷蔵庫の設置場所もベストでは無かった。

カップボード背面はクロスの色も少し明るいものにしてダウンシーリング照明を新設した。ご家族全員が明るい照明を希望されており、配灯計画も明るめを意識した。
こちらは店舗とキッチンを繋ぐ通路でストック品が置かれていた。

キッチンの奥の壁にパントリーを新設。大容量で大変便利に使われている。

クロスもブルーの天井にイエローの柄の壁クロスを採用し暗くなりがちな空間を楽しく演出。既存カップボードもこちらに納まった。
長年こちらの地域で店舗をされており、ご主人が他界されたこともあり同居となった。一階スペース以外にも二階もゆったりとした空間になっており、今回のゾーニングも既存キッチンダイニングを広げる形になったが娘様世帯のスペースも十分に確保できた。

ご家族のプライベート空間として店舗部分を改装。応接間や個室は他のスペースにあるので今回同居される娘様世帯のファミリー空間の充実がメインのリフォームとなった。また既存キッチンはお母さまと一緒に使い食事も一緒にされるので、ハイグレードで機能的な仕様とした。






